NEW

(仮称)S-Frontier渋谷青山通り(旧:エキスパートオフィス渋谷) 7階

充実の共用スペースが嬉しいフレキシブルセットアップオフィスが青山通り沿いに誕生!
最終情報更新日:2026/03/13
ビルコード: 1311303115
※竣工イメージ ※竣工イメージ
1階共用部 1階共用部
1階共用部 1階共用部
1階共用部 1階共用部
1階共用部 1階共用部
1階共用部 1階共用部
1階カフェスペース 1階カフェスペース
1階会議室 1階会議室
1階会議室 1階会議室
1階会議室 1階会議室
1階会議室 1階会議室
テレカンブース テレカンブース
※竣工イメージ
1階共用部
1階共用部
1階共用部
1階共用部
1階共用部
1階カフェスペース
1階会議室
1階会議室
1階会議室
1階会議室
テレカンブース
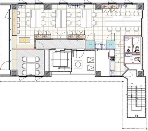
(仮称)S-Frontier渋谷青山通り(旧:エキスパートオフィス渋谷) 7階 平面図

賃貸条件

所在階 7階 内装付
用途 事務所
面積 34.17坪 / 112.98m²
賃料 1,571,820円
共益費 賃料に含む
坪単価 46,000円/坪 (共益費込)
預託金 なし
入居時期 即入居
その他費用 償却: なし
礼金: なし
更新料・再契約料: なし
天井高 3,300mm
トイレ 男女別
床仕様 OAフロア
その他 【内装・什器付フルセットアップ】執務室(20席)、6名用専用会議室、受付、ラウンジスペース、テレカンブース2室

物件概要

所在地 東京都渋谷区渋谷2丁目10-15
交通
  • JR山手線 渋谷駅 8分
  • 東京メトロ銀座線 渋谷駅 6分
  • 東京メトロ千代田線 表参道駅 8分
規模 地上10階建て
竣工 2014年8月
耐震基準 新耐震基準
構造 鉄骨(S造)

物件詳細・設備

エレベーター 1基
空調 個別空調
セキュリティ 機械警備
建物設備 1階共用部:テレカンブース(6台)・貸会議室(6名用×2室)・待ち合わせスペース・ウォーターサーバー
リニューアル履歴 2025年10月 1階共用部・エントランスリニューアル

(仮称)S-Frontier渋谷青山通り(旧:エキスパートオフィス渋谷)の空室一覧

↓ 募集区画クリックで詳細情報をご覧いただけます

募集区画 面積 用途 賃料+共益費 坪単価(共益費込) 入居時期 平面図 お気に入り
NEW 7階 内装付 34.17坪 事務所 1,571,820円 46,000円/坪 即入居
NEW 6階 内装付 34.17坪 事務所 1,571,820円 46,000円/坪 即入居
2階 内装付 34.17坪 事務所 1,469,310円 43,000円/坪 即入居

近隣の条件が近い物件

東京都渋谷区渋谷2丁目9-8

地上11階建て

34.55坪 〜 34.55坪

JR山手線 渋谷駅 6分

東京都渋谷区渋谷1丁目14-9

地上10階 / 地下1階

31.28坪

JR山手線 渋谷駅 1分

東京都渋谷区桜丘町2

地上39階 / 地下4階

31.56坪 〜 32.13坪

JR山手線 渋谷駅 1分

東京都渋谷区渋谷1丁目14-16

地上9階 / 地下1階

37.56坪

JR山手線 渋谷駅 2分

東京都渋谷区桜丘町24-4

地上6階 / 地下1階

32.41坪

JR山手線 渋谷駅 2分

東京都渋谷区渋谷2丁目10-14

地上10階建て

27.71坪

東京メトロ半蔵門線 渋谷駅 6分

東京都渋谷区渋谷1丁目20-18

地上5階 / 地下1階

39.02坪

JR山手線 渋谷駅 5分

東京都渋谷区渋谷2丁目16-5

地上8階建て

40.22坪

JR山手線 渋谷駅 3分

東京都渋谷区神宮前3丁目22-12

地上5階建て

33.01坪 〜 35.21坪

東京メトロ千代田線 明治神宮前<原宿>駅 6分

東京都港区南青山4丁目23-6

地上3階 / 地下1階

32.5坪

東京メトロ千代田線 表参道駅 8分

東京都渋谷区渋谷3丁目26-17

地上10階 / 地下1階

30.58坪

JR山手線 渋谷駅 3分

東京都渋谷区渋谷1丁目1-16

地上6階建て

26.53坪

JR山手線 渋谷駅 7分

※表示金額はすべて「税抜き表示」となっています。 / ※間取図は現況を優先させていただきます。 / ※駐車場は建物設備としての有無のため、有の場合でも賃貸条件としての空きを保証するものではありません。 / ※掲載情報の誤りや変更、未掲載情報の掲載依頼がございましたら、お手数ですが お問い合わせフォーム よりご連絡ください。

掲載物件数:2,401件  4,337区画

お気に入りに追加