NEW

GOWA西新宿 6階

最終情報更新日:2025/10/02
ビルコード:1310402136
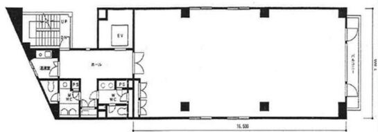
GOWA西新宿 6階 平面図

賃貸条件

所在階6階
用途事務所
面積41.37坪 / 136.76m²
賃料相談
共益費相談
坪単価-
預託金8ヶ月
入居時期2026年2月上旬
その他費用償却: 1ヶ月
礼金: 1ヶ月
更新料・再契約料: 新賃料1ヶ月
トイレ男女別
床仕様OAフロア

物件概要

所在地東京都新宿区西新宿7丁目5-8
交通
  • 都営大江戸線 新宿西口駅 5分
  • 西武新宿線 西武新宿駅 5分
  • JR山手線 新大久保駅 6分
  • JR中央・総武線 新宿駅 10分
規模地上10階建て
竣工1993年5月
耐震基準新耐震基準
構造鉄骨(S造)

物件詳細・設備

エレベーター1基
空調個別空調
セキュリティ機械警備

GOWA西新宿の空室一覧

↓ 募集区画クリックで詳細情報をご覧いただけます

募集区画面積用途賃料+共益費坪単価(共益費込)入居時期平面図お気に入り
NEW7階41.37坪事務所相談-2026年1月上旬
NEW6階41.37坪事務所相談-2026年2月上旬

※表⽰⾦額は、敷⾦・保証⾦などの預かり⾦を除き、別途消費税がかかります。 / ※間取図は現況を優先させていただきます。 / ※駐車場は建物設備としての有無のため、有の場合でも賃貸条件としての空きを保証するものではありません。 / ※掲載情報の誤りや変更、未掲載情報の掲載依頼がございましたら、お手数ですが お問い合わせフォームよりご連絡ください。

近隣の条件が近い物件

東京都新宿区西新宿7丁目10-6

地上9階 / 地下1階

42.8坪

都営大江戸線 新宿西口駅 2分

東京都新宿区大久保1丁目14-15

地上9階 / 地下1階

41.33坪

JR山手線 新大久保駅 5分

東京都新宿区歌舞伎町2丁目10-5

地上8階 / 地下1階

43.0坪

東京メトロ丸ノ内線 新宿三丁目駅 4分

東京都新宿区西新宿8丁目5-5

地上9階建て

38.32坪

東京メトロ丸ノ内線 西新宿駅 1分

東京都新宿区新宿5丁目16-11

地上9階 / 地下1階

43.67坪

東京メトロ丸ノ内線 新宿三丁目駅 3分

東京都新宿区西新宿1丁目5-11

地上9階 / 地下1階

45.62坪

JR山手線 新宿駅 1分

東京都新宿区西新宿6丁目11-3

地上29階 / 地下2階

43.69坪

東京メトロ丸ノ内線 西新宿駅 3分

東京都新宿区歌舞伎町2丁目9-10

地上5階 / 地下1階

45.0坪

東京メトロ丸ノ内線 新宿三丁目駅 5分

東京都新宿区西新宿1丁目20-3

地上11階 / 地下1階

43.05坪

JR山手線 新宿駅 5分

東京都新宿区新宿5丁目17-11

地上11階 / 地下2階

38.47坪

東京メトロ副都心線 新宿三丁目駅 1分

東京都渋谷区代々木2丁目21-10

地上7階建て

41.23坪

京王線 新宿駅 3分

東京都新宿区新宿5丁目16-15

地上10階 / 地下1階

44.23坪

東京メトロ丸ノ内線 新宿三丁目駅 1分

東京都新宿区西新宿8丁目5-1

地上8階 / 地下1階

36.68坪

東京メトロ丸ノ内線 西新宿駅 1分

東京都新宿区西新宿2丁目1-1

地上55階 / 地下3階

37.31坪

都営大江戸線 都庁前駅 1分

東京都新宿区新宿3丁目12-7(未定)

地上12階建て

44.62坪

東京メトロ丸ノ内線 新宿三丁目駅 1分

掲載物件数:2,242件  4,156区画

お気に入りに追加