
賃貸条件
| 所在階 | 地下1階 |
|---|---|
| 用途 | 店舗 |
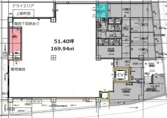
| 面積 | 51.4坪 / 169.91m² |
| 賃料 | 1,542,000円 |
| 共益費 | 賃料に含む |
| 坪単価 | 30,000円/坪(共益費込) |
| 預託金 | 5ヶ月 |
| 入居時期 | 即入居 |
| その他費用 | 償却: 15% 礼金: 1ヶ月 更新料・再契約料: 1ヶ月 |
| 天井高 | 3,150mm |
| トイレ | 男女別 |
| 床仕様 | タイルカーペット |
| その他 | 飲食不可 |
物件概要
| 所在地 | 東京都渋谷区神宮前5丁目42-14 |
|---|---|
| 交通 |
|
| 規模 | 地上5階 / 地下1階 |
| 竣工 | 2025年7月 |
| 耐震基準 | 新耐震基準 |
| 構造 | 鉄筋コンクリート(RC造) |
物件詳細・設備
| エレベーター | 1基 |
|---|---|
| 情報通信設備 | 光ファイバー |
| 空調 | 個別空調 |
※表⽰⾦額は、敷⾦・保証⾦などの預かり⾦を除き、別途消費税がかかります。 / ※間取図は現況を優先させていただきます。 / ※駐車場は建物設備としての有無のため、有の場合でも賃貸条件としての空きを保証するものではありません。 / ※掲載情報の誤りや変更、未掲載情報の掲載依頼がございましたら、お手数ですが お問い合わせフォームよりご連絡ください。
近隣の条件が近い物件
掲載物件数:2,361件
4,302区画











建物詳細
豊匯ビル(読み:ほうかいビル、東京都渋谷区神宮前5丁目42-14)は、カフェやサロン、アパレル系などの物販店などが集まる神宮前5丁目エリアに立地する2025年7月竣工の賃貸テナントビルです。建物規模は地上5階・地下1階建て、エレベーターは1基ございます。
最新の募集状況・賃貸条件など、お気軽にお問合せ下さい。