高輪エンパイヤビル 1階

最終情報更新日:2026/03/12
ビルコード: 1310304409
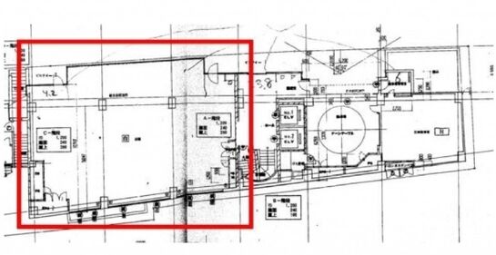
高輪エンパイヤビル 1階 平面図

賃貸条件

所在階 1階
用途 事務所、店舗
面積 57.24坪 / 189.22m²
賃料 相談
共益費 賃料に含む
坪単価 -
預託金 10ヶ月
入居時期 即入居
その他費用 償却: なし
礼金: 1ヶ月
更新料・再契約料: なし

物件概要

所在地 東京都港区高輪3丁目24-18
交通
  • JR山手線 品川駅 5分
  • 京急本線 泉岳寺駅 7分
規模 地上10階 / 地下1階
竣工 1991年4月
耐震基準 新耐震基準
構造 鉄骨鉄筋コンクリート(SRC造)
基準階坪数 55.22坪

物件詳細・設備

エレベーター 2基
駐車場 あり
情報通信設備 光ファイバー
空調 セントラル空調

高輪エンパイヤビルの空室一覧

↓ 募集区画クリックで詳細情報をご覧いただけます

募集区画 面積 用途 賃料+共益費 坪単価(共益費込) 入居時期 平面図 お気に入り
NEW 4階401 55.22坪 事務所 相談 - 2026年7月上旬
1階 57.24坪 事務所、店舗 相談 - 即入居
NEW 地下1階 45.48坪 事務所 相談 - 2026年4月上旬

近隣の条件が近い物件

東京都港区港南2丁目14-10

地上10階 / 地下1階

58.82坪

JR山手線 品川駅 1分

東京都港区高輪4丁目24-58

地上8階建て

55.38坪

京急本線 北品川駅 6分

東京都品川区東五反田1丁目10-10

地上10階 / 地下1階

55.74坪

JR山手線 五反田駅 3分

東京都港区三田3丁目11-36

地上8階 / 地下1階

55.18坪

京急本線 泉岳寺駅 3分

東京都港区芝浦3丁目15-6

地上6階建て

56.1坪

JR山手線 田町駅 6分

東京都港区高輪2丁目17-13

地上9階 / 地下2階

61.9坪

京急本線 泉岳寺駅 1分

東京都港区芝5丁目30-9

地上10階 / 地下1階

57.73坪

都営浅草線 三田駅 2分

東京都港区高輪3丁目4-13

地上8階建て

50.72坪 〜 50.99坪

都営浅草線 高輪台駅 5分

東京都品川区西五反田1丁目23-9

地上9階 / 地下1階

58.04坪

JR山手線 五反田駅 5分

東京都品川区東五反田5丁目25-21

地上6階建て

59.99坪

JR山手線 五反田駅 1分

東京都品川区西五反田2丁目24-4

地上10階建て

56.73坪

都営浅草線 五反田駅 5分

東京都品川区大崎5丁目1-5

地上4階建て

54.81坪

JR山手線 五反田駅 4分

東京都港区三田3丁目1-7

地上8階建て

55.81坪

JR山手線 田町駅 5分

※表示金額はすべて「税抜き表示」となっています。 / ※間取図は現況を優先させていただきます。 / ※駐車場は建物設備としての有無のため、有の場合でも賃貸条件としての空きを保証するものではありません。 / ※掲載情報の誤りや変更、未掲載情報の掲載依頼がございましたら、お手数ですが お問い合わせフォーム よりご連絡ください。

掲載物件数:2,339件  4,230区画

お気に入りに追加