NEW

IT TOWER TOKYO(旧:(仮称)池袋西口プロジェクト・池袋マルイ跡地) 8階

池袋マルイ跡地、池袋駅各改札から地下通路で直結!オフィス・商業複合ビル。
最終情報更新日:2026/04/03
ビルコード: 1311600419
フロア構成 フロア構成
フロア構成
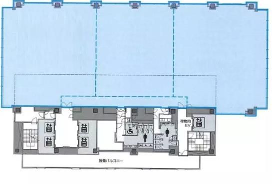
IT TOWER TOKYO(旧:(仮称)池袋西口プロジェクト・池袋マルイ跡地) 8階 平面図
建物詳細

■フロア構成
6F~25F オフィス
5F カフェテリア又は職域食堂
2F オフィスエントランス
B1F~4F 商業フロア


最新のテナント募集状況・賃貸条件など、お気軽にお問合せ下さい。

賃貸条件

所在階 8階
用途 事務所
面積 46.91坪 / 155.07m²
賃料 相談
共益費 相談
坪単価 -
預託金 12ヶ月
入居時期 即入居
天井高 3,000mm
トイレ 男女別
床仕様 OAフロア

物件概要

所在地 東京都豊島区西池袋3丁目28-13
交通
  • JR山手線 池袋駅 4分
規模 地上28階 / 地下4階
竣工 2025年12月
耐震基準 新耐震基準
構造 鉄骨(S造)
基準階坪数 289.0坪
基準階天井高 3,000mm
延床面積 41,568.0㎡

物件詳細・設備

エレベーター 14基
駐車場 あり
空調 個別空調
建物設備 17階 プレミアムラウンジ(高層テナント限定)、8階 リフレッシュスペース、5階 職域食堂・シェアラウンジ
電気容量 60VA/m2、耐荷重 執務室500kg/m2、HDZ1000kg/m2

IT TOWER TOKYO(旧:(仮称)池袋西口プロジェクト・池袋マルイ跡地)の空室一覧

↓ 募集区画クリックで詳細情報をご覧いただけます

募集区画 面積 用途 賃料+共益費 坪単価(共益費込) 入居時期 平面図 お気に入り
25階 291.37坪 事務所 相談 - 即入居
24階 291.37坪 事務所 相談 - 即入居
22階 102.1坪 事務所 相談 - 即入居
NEW 8階 46.91坪 事務所 相談 - 即入居
8階 38.06坪 店舗 相談 - 即入居

※表示金額はすべて「税抜き表示」となっています。 / ※間取図は現況を優先させていただきます。 / ※駐車場は建物設備としての有無のため、有の場合でも賃貸条件としての空きを保証するものではありません。 / ※掲載情報の誤りや変更、未掲載情報の掲載依頼がございましたら、お手数ですが お問い合わせフォーム よりご連絡ください。

掲載物件数:2,331件  4,171区画

お気に入りに追加