03-6264-1890
受付時間 9:00 - 18:30 定休日 土日祝
受付時間 9:00 - 18:30 定休日 土日祝
IT TOWER TOKYO(旧:(仮称)池袋西口プロジェクト・池袋マルイ跡地) 8階
物件情報
| 所在地 | 東京都豊島区西池袋3丁目28-13 |
|---|---|
| 最寄駅 |
JR山手線 池袋駅 4分 |
| 竣工 | 2025年12月 |
| 階数 | 地上28階 / 地下4階 |
| エレベーター | 14基 |
賃貸条件
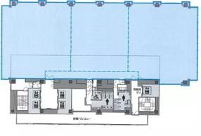
| 募集区画 | 8階 |
|---|---|
| 賃料 (共益費) | 相談(相談) |
| 敷金 /礼金 | 12ヶ月/- |
|
保証金
/敷引/償却 |
なし |
| 面積 | 46.91坪 |
| 入居条件 | 即入居 |