第2五味ビル(第二五味ビル) 4階B

最終情報更新日:2026/03/07
ビルコード: 1310203822
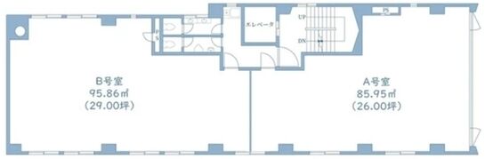
第2五味ビル(第二五味ビル) 4階B 平面図

賃貸条件

所在階 4階
用途 事務所
面積 29.0坪 / 95.86m²
賃料 377,000円
共益費 賃料に含む
坪単価 13,000円/坪 (共益費込)
預託金 なし
入居時期 即入居
トイレ 男女別

物件概要

所在地 東京都中央区銀座1丁目14-5
交通
  • 東京メトロ有楽町線 銀座一丁目駅 2分
  • 都営浅草線 宝町駅 3分
  • 東京メトロ日比谷線 東銀座駅 4分
  • 東京メトロ銀座線 京橋駅 5分
  • JR山手線 有楽町駅 8分
規模 地上9階建て
竣工 1971年
構造 鉄骨鉄筋コンクリート(SRC造)
基準階坪数 54.73坪

物件詳細・設備

エレベーター 1基
駐車場 なし
情報通信設備 光ファイバー
空調 個別空調
セキュリティ 機械警備

第2五味ビル(第二五味ビル)の空室一覧

↓ 募集区画クリックで詳細情報をご覧いただけます

募集区画 面積 用途 賃料+共益費 坪単価(共益費込) 入居時期 平面図 お気に入り
6階 55.0坪 事務所 715,000円 13,000円/坪 即入居
5階 55.0坪 事務所 715,000円 13,000円/坪 即入居
4階A 55.0坪 事務所 715,000円 13,000円/坪 即入居
4階B 29.0坪 事務所 377,000円 13,000円/坪 即入居
3階 55.0坪 事務所 相談 - 即入居
3階B 29.0坪 事務所 377,000円 13,000円/坪 即入居
3階A 26.0坪 事務所 338,000円 13,000円/坪 即入居

近隣の条件が近い物件

東京都中央区銀座3丁目3-14

地上11階 / 地下1階

29.98坪

東京メトロ銀座線 銀座駅 1分

東京都中央区京橋2丁目6-6

地上8階建て

29.03坪

東京メトロ銀座線 京橋駅 2分

東京都中央区八丁堀3丁目9-8

地上10階建て

28.94坪

都営浅草線 宝町駅 3分

東京都中央区築地1丁目5-11

地上6階 / 地下1階

27.28坪

東京メトロ有楽町線 新富町駅 4分

東京都中央区新富2丁目15-6

地上9階 / 地下1階

28.05坪

東京メトロ有楽町線 新富町駅 1分

東京都中央区築地2丁目2-8

地上6階 / 地下1階

30.29坪

東京メトロ有楽町線 新富町駅 2分

東京都中央区築地4丁目1-1

地上19階 / 地下3階

29.83坪

東京メトロ日比谷線 東銀座駅 2分

東京都中央区新富1丁目16-12

地上6階 / 地下1階

30.7坪

東京メトロ有楽町線 新富町駅 3分

東京都中央区銀座1丁目14-6

地上11階 / 地下1階

33.34坪

東京メトロ有楽町線 銀座一丁目駅 2分

東京都中央区八丁堀2丁目21-6

地上9階 / 地下1階

30.08坪

東京メトロ日比谷線 八丁堀駅 1分

東京都中央区築地3丁目12-11

地上7階 / 地下1階

30.67坪

東京メトロ日比谷線 築地駅 1分

東京都中央区銀座7丁目18-14

地上7階建て

28.54坪

都営大江戸線 築地市場駅 3分

東京都中央区日本橋3丁目14-3

地上13階建て

28.05坪

都営浅草線 日本橋駅 3分

東京都中央区八丁堀4丁目9-6

地上10階建て

26.6坪

東京メトロ日比谷線 八丁堀駅 1分

東京都中央区八重洲1丁目9

地上51階 / 地下4階

31.17坪

JR山手線 東京駅 0分

東京都中央区銀座1丁目5-15

地上9階 / 地下1階

24.01坪

東京メトロ有楽町線 銀座一丁目駅 1分

東京都中央区京橋2丁目5-1

地上9階 / 地下1階

33.67坪

東京メトロ銀座線 京橋駅 1分

※表示金額はすべて「税抜き表示」となっています。 / ※間取図は現況を優先させていただきます。 / ※駐車場は建物設備としての有無のため、有の場合でも賃貸条件としての空きを保証するものではありません。 / ※掲載情報の誤りや変更、未掲載情報の掲載依頼がございましたら、お手数ですが お問い合わせフォーム よりご連絡ください。

掲載物件数:2,373件  4,293区画

お気に入りに追加