NEW

第2五味ビル(第二五味ビル) 4階A

最終情報更新日:2025/12/05
ビルコード:1310203822
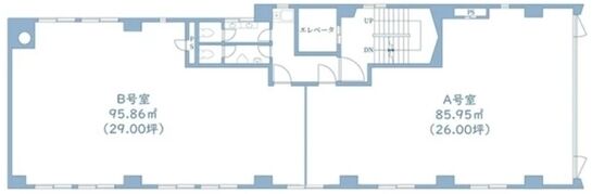
第2五味ビル(第二五味ビル) 4階A 平面図

賃貸条件

所在階4階
用途事務所
面積55.0坪 / 181.81m²
賃料715,000円
共益費賃料に含む
坪単価13,000円/坪(共益費込)
預託金なし
入居時期即入居
トイレ男女別

物件概要

所在地東京都中央区銀座1丁目14-5
交通
  • 東京メトロ有楽町線 銀座一丁目駅 2分
  • 都営浅草線 宝町駅 3分
  • 東京メトロ日比谷線 東銀座駅 4分
  • 東京メトロ銀座線 京橋駅 5分
  • JR山手線 有楽町駅 8分
規模地上9階建て
竣工1971年
構造鉄骨鉄筋コンクリート(SRC造)
基準階坪数54.73坪

物件詳細・設備

エレベーター1基
駐車場なし
情報通信設備光ファイバー
空調個別空調
セキュリティ機械警備

第2五味ビル(第二五味ビル)の空室一覧

↓ 募集区画クリックで詳細情報をご覧いただけます

募集区画面積用途賃料+共益費坪単価(共益費込)入居時期平面図お気に入り
NEW6階55.0坪事務所715,000円13,000円/坪即入居
NEW5階55.0坪事務所715,000円13,000円/坪即入居
NEW4階A55.0坪事務所715,000円13,000円/坪即入居
NEW4階B29.0坪事務所377,000円13,000円/坪即入居
3階54.73坪事務所相談-即入居
NEW3階B29.0坪事務所377,000円13,000円/坪即入居
NEW3階A26.0坪事務所338,000円13,000円/坪即入居

※表⽰⾦額は、敷⾦・保証⾦などの預かり⾦を除き、別途消費税がかかります。 / ※間取図は現況を優先させていただきます。 / ※駐車場は建物設備としての有無のため、有の場合でも賃貸条件としての空きを保証するものではありません。 / ※掲載情報の誤りや変更、未掲載情報の掲載依頼がございましたら、お手数ですが お問い合わせフォームよりご連絡ください。

近隣の条件が近い物件

東京都中央区銀座3丁目9-4

地上8階 / 地下1階

54.0坪

都営浅草線 東銀座駅 2分

東京都中央区銀座2丁目5-7

地上7階 / 地下1階

54.0坪

東京メトロ有楽町線 銀座一丁目駅 2分

東京都中央区銀座3丁目3-14

地上11階 / 地下1階

53.14坪

東京メトロ銀座線 銀座駅 1分

東京都中央区八丁堀3丁目22-11

地上10階建て

54.97坪

東京メトロ日比谷線 八丁堀駅 1分

東京都中央区入船1丁目5-11

地上7階建て

57.01坪

東京メトロ日比谷線 八丁堀駅 3分

東京都千代田区有楽町1丁目7-1

地上20階 / 地下4階

55.52坪

東京メトロ日比谷線 日比谷駅 1分

東京都中央区八丁堀4丁目13-1

地上8階 / 地下1階

54.69坪

JR京葉線 八丁堀駅 1分

東京都中央区築地7丁目2-1

地上7階建て

50.96坪 〜 55.41坪

東京メトロ日比谷線 築地駅 4分

東京都千代田区丸の内3丁目2-3

地上30階 / 地下4階

55.05坪

東京メトロ日比谷線 日比谷駅 1分

東京都中央区入船3丁目8-7

地上7階建て

53.21坪

東京メトロ有楽町線 新富町駅 3分

東京都千代田区丸の内2丁目1-1

地上8階 / 地下2階

56.0坪

東京メトロ丸ノ内線 東京駅 5分

東京都中央区銀座3丁目14-1

地上8階建て

49.98坪

東京メトロ日比谷線 東銀座駅 4分

東京都中央区京橋3丁目14-6

地上9階 / 地下1階

49.82坪

都営浅草線 宝町駅 1分

東京都中央区日本橋茅場町2丁目7-10

地上10階 / 地下1階

54.12坪

東京メトロ東西線 茅場町駅 2分

東京都中央区京橋3丁目12-7

地上9階建て

61.09坪

都営浅草線 宝町駅 1分

東京都中央区日本橋茅場町2丁目8-8 (仮住居表示)

地上9階建て

57.34坪

東京メトロ日比谷線 茅場町駅 1分

東京都中央区新川1丁目16-4

地上9階建て

54.93坪

東京メトロ日比谷線 茅場町駅 6分

東京都港区東新橋1丁目9-1

地上37階 / 地下4階

55.6坪

都営大江戸線 汐留駅 1分

掲載物件数:2,382件  4,316区画

お気に入りに追加