渋谷TSKビル 4階

最終情報更新日:2026/03/03
ビルコード: 1311302260
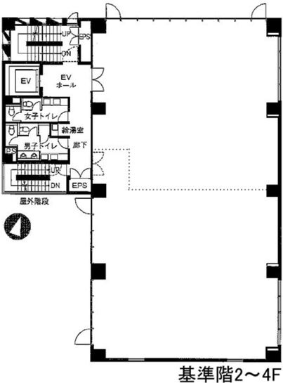
渋谷TSKビル 4階 平面図
建物詳細

渋谷TSKビル(渋谷区南平台町)は、渋谷駅徒歩8分の賃貸オフィスビルです。

建物の規模は地上4階建て、竣工は2008年6月(新耐震基準)です。

エレベーターは1基あります。基準階のフロア面積は104.66坪です。

最新の空室状況や賃料・賃貸条件など、お気軽にお問合せ下さい。

賃貸条件

所在階 4階
用途 事務所
面積 104.67坪 / 346.01m²
賃料 相談
共益費 賃料に含む
坪単価 -
預託金 相談
入居時期 即入居
天井高 2,620mm
トイレ 男女別
床仕様 OAフロア

物件概要

所在地 東京都渋谷区南平台町3-8
交通
  • JR山手線 渋谷駅 8分
規模 地上4階建て
竣工 2008年6月
耐震基準 新耐震基準
構造 鉄筋コンクリート(RC造)
基準階坪数 104.66坪
延床面積 2,103.53㎡

物件詳細・設備

エレベーター 1基
駐車場 あり
情報通信設備 光ファイバー
空調 個別空調
セキュリティ 機械警備

渋谷TSKビルの空室一覧

↓ 募集区画クリックで詳細情報をご覧いただけます

募集区画 面積 用途 賃料+共益費 坪単価(共益費込) 入居時期 平面図 お気に入り
4階 104.67坪 事務所 相談 - 即入居

近隣の条件が近い物件

東京都渋谷区渋谷2丁目16-1

地上12階 / 地下1階

106.91坪

JR山手線 渋谷駅 4分

東京都渋谷区東3丁目9-19

地上11階 / 地下1階

104.88坪

JR山手線 恵比寿駅 5分

東京都渋谷区渋谷1丁目14-16

地上9階 / 地下1階

111.62坪 〜 114.23坪

JR山手線 渋谷駅 2分

東京都渋谷区渋谷宇田川町10-3

地上9階 / 地下2階

90.51坪 〜 96.93坪

JR山手線 渋谷駅 6分

東京都渋谷区神泉町9-1

地上9階 / 地下1階

92.36坪

京王井の頭線 神泉駅 4分

東京都渋谷区東1丁目26-20

地上14階 / 地下3階

113.0坪

JR山手線 渋谷駅 7分

東京都渋谷区桜丘町2

地上39階 / 地下4階

92.29坪

JR山手線 渋谷駅 1分

東京都渋谷区南平台町16-28

地上11階 / 地下1階

88.94坪

京王井の頭線 神泉駅 5分

東京都渋谷区恵比寿1丁目18-18

地上9階 / 地下1階

99.23坪

JR山手線 恵比寿駅 4分

東京都目黒区青葉台3丁目1-19

地上9階建て

119.74坪

京王井の頭線 神泉駅 7分

東京都渋谷区代々木4丁目31-6

地上9階 / 地下1階

105.57坪

京王線 初台駅 4分

東京都渋谷区初台1丁目46-3

地上10階 / 地下2階

102.86坪

京王線 初台駅 3分

東京都渋谷区千駄ヶ谷5丁目8-2

地上4階 / 地下1階

106.5坪

東京メトロ副都心線 北参道駅 5分

東京都目黒区青葉台3丁目6-16

地上8階建て

119.34坪

東急田園都市線 池尻大橋駅 7分

東京都渋谷区渋谷4丁目2-12

地上4階 / 地下1階

113.6坪

東京メトロ銀座線 表参道駅 8分

東京都渋谷区恵比寿南2丁目5-1

地上5階建て

95.48坪

東京メトロ日比谷線 恵比寿駅 3分

東京都渋谷区代々木4丁目29-4

地上4階 / 地下1階

101.98坪

京王線 初台駅 4分

※表示金額はすべて「税抜き表示」となっています。 / ※間取図は現況を優先させていただきます。 / ※駐車場は建物設備としての有無のため、有の場合でも賃貸条件としての空きを保証するものではありません。 / ※掲載情報の誤りや変更、未掲載情報の掲載依頼がございましたら、お手数ですが お問い合わせフォーム よりご連絡ください。

掲載物件数:2,354件  4,249区画

お気に入りに追加