NEW

NOVEL WORK Shinjuku West(旧:OYAビル) 2階

ホテルライクなフルセットアップのリニューアルオフィス!
最終情報更新日:2026/03/13
ビルコード: 1310400109
※室内リニューアルイメージ(8階例) ※室内リニューアルイメージ(8階例)
※室内リニューアルイメージ(8階例) ※室内リニューアルイメージ(8階例)
※室内リニューアルイメージ(8階例) ※室内リニューアルイメージ(8階例)
※室内リニューアルイメージ(8階例) ※室内リニューアルイメージ(8階例)
※室内リニューアルイメージ(8階例) ※室内リニューアルイメージ(8階例)
※室内リニューアルイメージ(8階例)
※室内リニューアルイメージ(8階例)
※室内リニューアルイメージ(8階例)
※室内リニューアルイメージ(8階例)
※室内リニューアルイメージ(8階例)
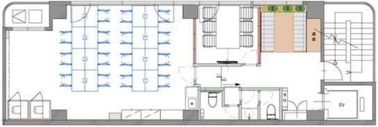
NOVEL WORK Shinjuku West(旧:OYAビル) 2階 平面図

賃貸条件

所在階 2階 内装付
用途 事務所
面積 25.01坪 / 82.67m²
賃料 775,310円
共益費 賃料に含む
坪単価 31,000円/坪 (共益費込)
預託金 なし
入居時期 相談
その他費用 償却: なし
礼金: なし
更新料・再契約料: なし
トイレ 男女別
床仕様 OAフロア
その他 内装造作・什器付フルセットアップオフィス/原状回復義務なし(原状変更した場合や破損等を除く)

物件概要

所在地 東京都新宿区西新宿3丁目9-6
交通
  • 京王線 初台駅 5分
  • 都営大江戸線 都庁前駅 10分
  • JR山手線 新宿駅 10分
規模 地上9階建て
竣工 1990年11月
耐震基準 新耐震基準
構造 鉄骨(S造)
基準階坪数 26.0坪
基準階天井高 2,400mm

物件詳細・設備

エレベーター 1基
情報通信設備 光ファイバー(MDFまで)
空調 個別空調

NOVEL WORK Shinjuku West(旧:OYAビル)の空室一覧

↓ 募集区画クリックで詳細情報をご覧いただけます

募集区画 面積 用途 賃料+共益費 坪単価(共益費込) 入居時期 平面図 お気に入り
6階 内装付 25.01坪 事務所 775,310円 31,000円/坪 2026年5月上旬
NEW 5階 内装付 25.01坪 事務所 775,310円 31,000円/坪 相談
4階 内装付 25.01坪 事務所 775,310円 31,000円/坪 2026年5月上旬
NEW 2階 内装付 25.01坪 事務所 775,310円 31,000円/坪 相談

近隣の条件が近い物件

東京都新宿区西新宿3丁目7-1

地上52階 / 地下5階

15.77坪 〜 24.97坪

京王線 初台駅 6分

東京都渋谷区代々木3丁目23-4

地上11階建て

25.76坪

京王線 新宿駅 5分

東京都渋谷区代々木2丁目11-19

地上11階 / 地下1階

21.01坪 〜 23.25坪

JR山手線 新宿駅 4分

東京都新宿区西新宿3丁目5-1

地上10階 / 地下2階

29.03坪

都営大江戸線 都庁前駅 6分

東京都新宿区西新宿1丁目23-1

地上10階 / 地下2階

23.51坪

JR山手線 新宿駅 3分

東京都新宿区西新宿2丁目7-1

地上26階 / 地下4階

26.86坪

都営大江戸線 都庁前駅 2分

東京都渋谷区千駄ヶ谷5丁目32-4

地上8階建て

25.15坪

東京メトロ丸ノ内線 新宿三丁目駅 3分

東京都新宿区西新宿3丁目2-7

地上11階 / 地下4階

30.42坪

JR山手線 新宿駅 9分

東京都新宿区西新宿7丁目18-5

地上5階 / 地下1階

26.39坪

JR埼京線 新宿駅 8分

東京都新宿区西新宿1丁目7-1

地上9階 / 地下4階

27.9坪

JR山手線 新宿駅 2分

東京都新宿区西新宿3丁目9-2

地上8階 / 地下2階

33.86坪

京王線 初台駅 5分

東京都新宿区西新宿6丁目14-1

地上29階 / 地下4階

28.99坪

都営大江戸線 都庁前駅 3分

東京都渋谷区幡ヶ谷1丁目1-1

地上5階 / 地下1階

26.63坪

京王線 幡ヶ谷駅 1分

東京都中野区本町1丁目32-58

地上8階建て

26.62坪

東京メトロ丸ノ内線 中野坂上駅 1分

東京都渋谷区代々木2丁目11-20

地上9階建て

19.79坪

JR山手線 新宿駅 1分

東京都新宿区西新宿2丁目4-1

地上30階 / 地下3階

31.97坪

JR山手線 新宿駅 7分

※表示金額はすべて「税抜き表示」となっています。 / ※間取図は現況を優先させていただきます。 / ※駐車場は建物設備としての有無のため、有の場合でも賃貸条件としての空きを保証するものではありません。 / ※掲載情報の誤りや変更、未掲載情報の掲載依頼がございましたら、お手数ですが お問い合わせフォーム よりご連絡ください。

掲載物件数:2,360件  4,285区画

お気に入りに追加