NEW
NOVEL WORK Shinjuku West(旧:OYAビル) 4階
ホテルライクなフルセットアップのリニューアルオフィス!
最終情報更新日:2026/01/19
ビルコード:1310400109

賃貸条件
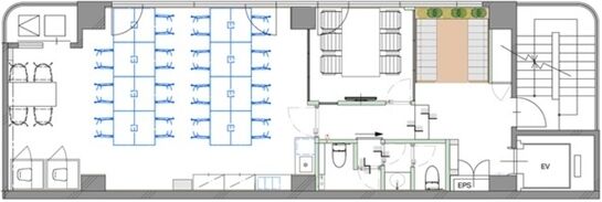
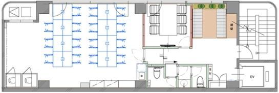
| 所在階 | 4階内装付 |
|---|---|
| 用途 | 事務所 |
| 面積 | 25.01坪 / 82.67m² |
| 賃料 | 775,310円 |
| 共益費 | 賃料に含む |
| 坪単価 | 31,000円/坪(共益費込) |
| 預託金 | なし |
| 入居時期 | 2026年4月上旬 |
| その他費用 | 償却: なし 礼金: なし 更新料・再契約料: なし |
| トイレ | 男女別 |
| 床仕様 | OAフロア |
| その他 | 内装造作・什器付フルセットアップオフィス/原状回復義務なし(原状変更した場合や破損等を除く) |
物件概要
| 所在地 | 東京都新宿区西新宿3丁目9-6 |
|---|---|
| 交通 |
|
| 規模 | 地上9階建て |
| 竣工 | 1990年11月 |
| 耐震基準 | 新耐震基準 |
| 構造 | 鉄骨(S造) |
| 基準階坪数 | 26.0坪 |
| 基準階天井高 | 2,400mm |
物件詳細・設備
| エレベーター | 1基 |
|---|---|
| 情報通信設備 | 光ファイバー(MDFまで) |
| 空調 | 個別空調 |
※表⽰⾦額は、敷⾦・保証⾦などの預かり⾦を除き、別途消費税がかかります。 / ※間取図は現況を優先させていただきます。 / ※駐車場は建物設備としての有無のため、有の場合でも賃貸条件としての空きを保証するものではありません。 / ※掲載情報の誤りや変更、未掲載情報の掲載依頼がございましたら、お手数ですが お問い合わせフォームよりご連絡ください。
近隣の条件が近い物件
掲載物件数:2,388件
4,334区画


























