NEW

飛栄九段ビル 7階702

靖国通り沿いのオフィスビル。石造りのしっかりとした印象。
最終情報更新日:2026/03/06
ビルコード: 1310101496
エントランスホール エントランスホール
エレベーター エレベーター
エントランスホール エントランスホール
周辺風景 周辺風景
周辺風景 周辺風景
エントランスホール
エレベーター
エントランスホール
周辺風景
周辺風景
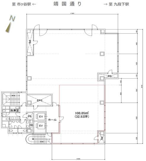
飛栄九段ビル 7階702 平面図
建物詳細

飛栄九段ビル(千代田区九段南3丁目8-11)は、最寄り都営新宿線「市ケ谷」駅地上出口から徒歩5分の賃貸オフィスビルです。建物は地上11階・地下1階建て、竣工は1991年6月(新耐震基準)です。エレベーターは2基あります。

基準階フロア面積は95.78坪、機械警備・個別空調・男女別トイレの設備仕様です。

最新の空室状況や賃料・賃貸条件など、お気軽にお問合せ下さい。

賃貸条件

所在階 7階
用途 事務所
面積 32.93坪 / 108.85m²
賃料 相談
共益費 115,255円
坪単価 -
預託金 相談
入居時期 2026年8月上旬
その他費用 償却: なし
礼金: なし
更新料・再契約料: なし
トイレ 男女別
床仕様 OAフロア

物件概要

所在地 東京都千代田区九段南3丁目8-11
交通
  • 都営新宿線 市ケ谷駅 5分
  • 東京メトロ半蔵門線 九段下駅 10分
規模 地上11階 / 地下1階
竣工 1991年6月
耐震基準 新耐震基準
構造 鉄骨鉄筋コンクリート(SRC造)
基準階坪数 95.78坪
基準階天井高 2,550mm
延床面積 4,246.29㎡

物件詳細・設備

エレベーター 2基
駐車場 あり
情報通信設備 光ファイバー
空調 個別空調
セキュリティ 機械警備
リニューアル履歴 2013年 リニューアル済

飛栄九段ビルの空室一覧

↓ 募集区画クリックで詳細情報をご覧いただけます

募集区画 面積 用途 賃料+共益費 坪単価(共益費込) 入居時期 平面図 お気に入り
NEW 7階702 32.93坪 事務所 相談 - 2026年8月上旬
1階 28.52坪 店舗 相談 - 即入居

近隣の条件が近い物件

東京都千代田区九段南4丁目3-4

地上7階建て

32.22坪

東京メトロ有楽町線 市ケ谷駅 2分

東京都千代田区九段南4丁目7-19

地上6階建て

32.37坪 〜 32.37坪

東京メトロ有楽町線 市ケ谷駅 1分

東京都千代田区一番町9-7

地上7階建て

32.84坪

東京メトロ半蔵門線 半蔵門駅 3分

東京都千代田区五番町4-2

地上8階 / 地下2階

34.0坪

JR中央・総武線 市ケ谷駅 2分

東京都千代田区九段南2丁目2-5

地上11階 / 地下1階

36.0坪

東京メトロ半蔵門線 九段下駅 3分

東京都千代田区一番町9-5

地上5階建て

30.83坪

東京メトロ半蔵門線 半蔵門駅 2分

東京都千代田区飯田橋1丁目12-15

地上4階建て

32.99坪

東京メトロ半蔵門線 九段下駅 3分

東京都千代田区九段南2丁目4-4

地上9階建て

37.55坪

JR中央・総武線 市ケ谷駅 8分

東京都千代田区九段南3丁目8-10

地上10階建て

27.27坪

東京メトロ有楽町線 市ケ谷駅 5分

東京都千代田区麹町1丁目8-1

地上7階建て

32.25坪

東京メトロ半蔵門線 半蔵門駅 1分

東京都千代田区富士見1丁目7-12

地上7階建て

31.28坪

JR中央・総武線 飯田橋駅 3分

東京都千代田区麹町1丁目6-3

地上10階 / 地下2階

33.27坪

東京メトロ半蔵門線 半蔵門駅 1分

※表示金額はすべて「税抜き表示」となっています。 / ※間取図は現況を優先させていただきます。 / ※駐車場は建物設備としての有無のため、有の場合でも賃貸条件としての空きを保証するものではありません。 / ※掲載情報の誤りや変更、未掲載情報の掲載依頼がございましたら、お手数ですが お問い合わせフォーム よりご連絡ください。

掲載物件数:2,397件  4,313区画

お気に入りに追加