03-6264-1890
受付時間 9:00 - 18:30 定休日 土日祝
受付時間 9:00 - 18:30 定休日 土日祝
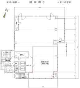
飛栄九段ビル 7階702
物件情報
| 所在地 | 東京都千代田区九段南3丁目8-11 |
|---|---|
| 最寄駅 |
都営新宿線 市ケ谷駅 5分 東京メトロ半蔵門線 九段下駅 10分 |
| 竣工 | 1991年6月 |
| 階数 | 地上11階 / 地下1階 |
| エレベーター | 2基 |
賃貸条件
| 募集区画 | 7階702 |
|---|---|
| 賃料 (共益費) | 相談(115,255円) |
| 敷金 /礼金 | 相談/なし |
|
保証金
/敷引/償却 |
-/-/なし |
| 面積 | 32.93坪 |
| 入居条件 | 2026年8月上旬 |