NEW

野村不動産西新宿ビル 5階B

西新宿駅と地下で直結!1階はコンビニ(ファミリーマート)
最終情報更新日:2026/04/08
ビルコード: 1310401403
貸室例 貸室例
貸室例 貸室例
貸室例 貸室例
貸室例 貸室例
貸室例 貸室例
貸室階 通路 貸室階 通路
貸室階 エレベーター 貸室階 エレベーター
貸室階 通路 貸室階 通路
給湯 給湯
男性トイレ 男性トイレ
男性トイレ 男性トイレ
男性トイレ 男性トイレ
女性トイレ 女性トイレ
女性トイレ 女性トイレ
貸室例
貸室例
貸室例
貸室例
貸室例
貸室階 通路
貸室階 エレベーター
貸室階 通路
給湯
男性トイレ
男性トイレ
男性トイレ
女性トイレ
女性トイレ
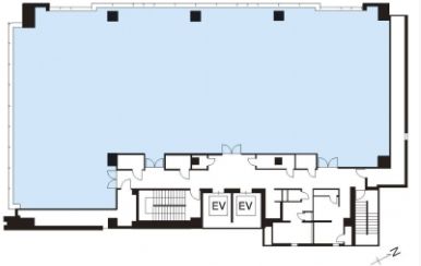
野村不動産西新宿ビル 5階B 平面図
建物詳細

野村不動産西新宿ビル(新宿区西新宿8丁目)は、東京メトロ丸ノ内線 西新宿駅徒歩1分の賃貸オフィスビルです。

ビルの竣工は2010年3月(新耐震基準)、建物規模は地上9階・地下1階建てです。

エレベーターは2基あります。貸室基準階のフロア面積は145.54坪、天井高は2800mmです。

設備面では、機械警備・個別空調・OAフロア・男女別トイレなどが備わっています。

最新の空室状況や賃料・賃貸条件など、お気軽にお問合せ下さい。

賃貸条件

所在階 5階
用途 事務所
面積 77.31坪 / 255.57m²
賃料 相談
共益費 賃料に含む
坪単価 -
預託金 相談
入居時期 2026年6月上旬
天井高 2,800mm
トイレ 男女別
床仕様 OAフロア

物件概要

所在地 東京都新宿区西新宿8丁目4-2
交通
  • 東京メトロ丸ノ内線 西新宿駅 1分
  • JR山手線 新宿駅 10分
規模 地上9階 / 地下1階
竣工 2010年3月
耐震基準 新耐震基準
構造 鉄骨(S造)
基準階坪数 145.54坪
基準階天井高 2,800mm
延床面積 6,336.98㎡

物件詳細・設備

エレベーター 2基
駐車場 あり 18台
情報通信設備 光ファイバー
空調 個別空調
セキュリティ 機械警備

野村不動産西新宿ビルの空室一覧

↓ 募集区画クリックで詳細情報をご覧いただけます

募集区画 面積 用途 賃料+共益費 坪単価(共益費込) 入居時期 平面図 お気に入り
NEW 5階B 77.31坪 事務所 相談 - 2026年6月上旬
5階A 68.23坪 事務所 相談 - 2026年6月上旬

※表示金額はすべて「税抜き表示」となっています。 / ※間取図は現況を優先させていただきます。 / ※駐車場は建物設備としての有無のため、有の場合でも賃貸条件としての空きを保証するものではありません。 / ※掲載情報の誤りや変更、未掲載情報の掲載依頼がございましたら、お手数ですが お問い合わせフォーム よりご連絡ください。

掲載物件数:2,345件  4,195区画

お気に入りに追加