
賃貸条件
| 所在階 | 2階 |
|---|---|
| 用途 | 事務所 |
| 面積 | 197.62坪 / 653.28m² |
| 賃料 | 4,940,500円 |
| 共益費 | 賃料に含む |
| 坪単価 | 25,000円/坪(共益費込) |
| 預託金 | 40,318,560円 |
| 入居時期 | 2026年3月上旬 |
| その他費用 | 償却: なし 礼金: 1ヶ月 更新料・再契約料: 新賃料1ヶ月 |
| 天井高 | 2,550mm |
| トイレ | 男女別 |
物件概要
| 所在地 | 東京都新宿区西新宿6丁目6-3 |
|---|---|
| 交通 |
|
| 規模 | 地上10階 / 地下2階 |
| 竣工 | 1985年9月 |
| 耐震基準 | 新耐震基準 |
| 構造 | 鉄骨鉄筋コンクリート(SRC造) |
| 基準階坪数 | 169.5坪 |
| 基準階天井高 | 2,500mm |
| 延床面積 | 10,187.65㎡ |
| 周辺施設 | ヒルトピア |
物件詳細・設備
| エレベーター | 2基 |
|---|---|
| 駐車場 | あり 機械式 |
| 情報通信設備 | 光ファイバー |
| 空調 | セントラル空調 |
| セキュリティ | 機械警備・有人管理 |
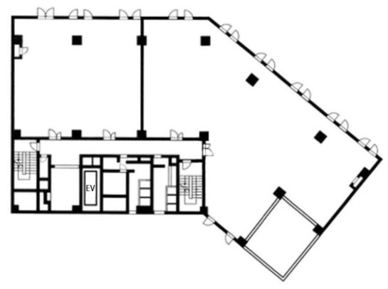
新宿国際ビルディング・新館の空室一覧
↓ 募集区画クリックで詳細情報をご覧いただけます
| 募集区画 | 面積 | 用途 | 賃料+共益費 | 坪単価(共益費込) | 入居時期 | 平面図 | お気に入り |
|---|---|---|---|---|---|---|---|
| NEW2階 | 197.62坪 | 事務所 | 4,940,500円 | 25,000円/坪 | 2026年3月上旬 |
※表⽰⾦額は、敷⾦・保証⾦などの預かり⾦を除き、別途消費税がかかります。 / ※間取図は現況を優先させていただきます。 / ※駐車場は建物設備としての有無のため、有の場合でも賃貸条件としての空きを保証するものではありません。 / ※掲載情報の誤りや変更、未掲載情報の掲載依頼がございましたら、お手数ですが お問い合わせフォームよりご連絡ください。
近隣の条件が近い物件
掲載物件数:2,457件
4,455区画



































建物詳細
新宿国際ビルディング新館(新宿区西新宿6丁目)は、東京メトロ丸ノ内線 西新宿駅徒歩2分の賃貸オフィスビルです。
ビルの竣工は1985年9月(新耐震基準)、建物規模は地上10階・地下2階建てです。
エレベーターは2基あります。貸室基準階のフロア面積は169.5坪、天井高は2500mmです。
設備面では、機械警備・OAフロア・男女別トイレなどが備わっています。
最新の空室状況や賃料・賃貸条件など、お気軽にお問合せ下さい。