新宿スリーケービル 3階

最終情報更新日:2025/09/12
ビルコード:1311300707
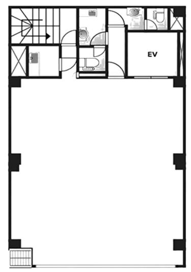
新宿スリーケービル 3階 平面図

賃貸条件

所在階3階
用途事務所
面積33.85坪 / 111.9m²
賃料650,000円
共益費賃料に含む
坪単価19,202円/坪(共益費込)
預託金6ヶ月
入居時期即入居
その他費用償却: なし
更新料・再契約料: 1ヶ月
トイレ男女別

物件概要

所在地東京都渋谷区代々木3丁目24-3
交通
  • 都営大江戸線 都庁前駅 9分
規模地上9階建て
竣工1989年1月
耐震基準新耐震基準
構造鉄筋コンクリート(RC造)
基準階坪数33.85坪

物件詳細・設備

エレベーター1基
駐車場なし
情報通信設備光ファイバー
空調個別空調
セキュリティ機械警備

新宿スリーケービルの空室一覧

↓ 募集区画クリックで詳細情報をご覧いただけます

募集区画面積用途賃料+共益費坪単価(共益費込)入居時期平面図お気に入り
7階33.85坪事務所636,380円18,800円/坪即入居
3階33.85坪事務所650,000円19,202円/坪即入居

※表⽰⾦額は、敷⾦・保証⾦などの預かり⾦を除き、別途消費税がかかります。 / ※間取図は現況を優先させていただきます。 / ※駐車場は建物設備としての有無のため、有の場合でも賃貸条件としての空きを保証するものではありません。 / ※掲載情報の誤りや変更、未掲載情報の掲載依頼がございましたら、お手数ですが お問い合わせフォームよりご連絡ください。

近隣の条件が近い物件

東京都新宿区西新宿4丁目32-4

地上13階建て

33.12坪

都営大江戸線 都庁前駅 6分

東京都新宿区西新宿2丁目4-1

地上30階 / 地下3階

26.52坪 〜 31.97坪

JR山手線 新宿駅 7分

東京都新宿区西新宿2丁目3-1

地上30階 / 地下3階

35.97坪

JR山手線 新宿駅 2分

東京都新宿区西新宿2丁目1-1

地上55階 / 地下3階

31.15坪 〜 37.31坪

都営大江戸線 都庁前駅 1分

東京都新宿区西新宿3丁目5-1

地上10階 / 地下2階

28.99坪

都営大江戸線 都庁前駅 6分

東京都新宿区西新宿6丁目12-4

地上12階建て

33.0坪

東京メトロ丸ノ内線 西新宿駅 5分

東京都新宿区西新宿2丁目7-1

地上26階 / 地下4階

36.31坪

都営大江戸線 都庁前駅 2分

東京都新宿区西新宿3丁目1-3

地上11階 / 地下1階

28.5坪

JR山手線 新宿駅 6分

東京都新宿区西新宿8丁目5-1

地上8階 / 地下1階

32.32坪 〜 36.68坪

東京メトロ丸ノ内線 西新宿駅 1分

東京都新宿区西新宿4丁目15-7

地上7階建て

29.62坪

都営大江戸線 都庁前駅 5分

東京都渋谷区代々木3丁目26-2

地上10階建て

43.23坪

京王線 初台駅 7分

東京都新宿区新宿3丁目12-7(未定)

地上12階建て

35.76坪

東京メトロ丸ノ内線 新宿三丁目駅 1分

東京都新宿区西新宿6丁目14-1

地上29階 / 地下4階

28.99坪

都営大江戸線 都庁前駅 3分

東京都新宿区新宿2丁目15-24

地上8階 / 地下1階

32.62坪

東京メトロ丸ノ内線 新宿御苑前駅 5分

東京都新宿区西新宿6丁目21-1

地上31階 / 地下4階

38.14坪

都営大江戸線 都庁前駅 6分

掲載物件数:2,243件  4,132区画

お気に入りに追加