芝公園電気ビルディングの空室一覧
↓ 募集区画クリックで詳細情報をご覧いただけます
| 募集区画 | 面積 | 用途 | 賃料+共益費 | 坪単価(共益費込) | 入居時期 | 平面図 | お気に入り |
|---|---|---|---|---|---|---|---|
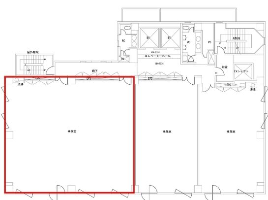
| 3階301+302 | 56.46坪 | 事務所 | 相談 | - | 2026年8月上旬 |
※表⽰⾦額は、敷⾦・保証⾦などの預かり⾦を除き、別途消費税がかかります。 / ※間取図は現況を優先させていただきます。 / ※駐車場は建物設備としての有無のため、有の場合でも賃貸条件としての空きを保証するものではありません。 / ※掲載情報の誤りや変更、未掲載情報の掲載依頼がございましたら、お手数ですが お問い合わせフォームよりご連絡ください。
近隣の条件が近い物件
掲載物件数:2,388件
4,334区画




























建物詳細
芝公園電気ビルは、都営三田線「御成門」駅徒歩1分の、利便性の良い好立地のオフィスです。
リフォーム済みの綺麗な室内です。有人管理で管理体制も良好です。
最新の空室状況や賃料・賃貸条件など、お気軽にお問合せ下さい。