03-6264-1890
受付時間 9:00 - 18:30 定休日 土日祝
受付時間 9:00 - 18:30 定休日 土日祝
芝公園電気ビルディング 3階301+302
物件情報
| 所在地 | 東京都港区芝公園1丁目1-12 |
|---|---|
| 最寄駅 |
都営三田線 御成門駅 1分 JR山手線 浜松町駅 9分 |
| 竣工 | 1988年1月 |
| 階数 | 地上10階 / 地下2階 |
| エレベーター | 2基 |
賃貸条件
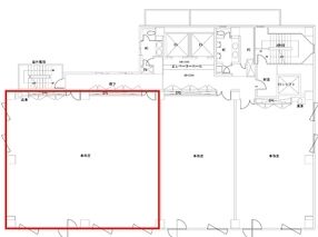
| 募集区画 | 3階301+302 |
|---|---|
| 賃料 (共益費) | 相談(282,300円) |
| 敷金 /礼金 | 12ヶ月/なし |
|
保証金
/敷引/償却 |
-/-/なし |
| 面積 | 56.46坪 |
| 入居条件 | 2026年8月上旬 |