
賃貸条件
| 所在階 | 5階 |
|---|---|
| 用途 | 事務所 |
| 面積 | 58.28坪 / 192.67m² |
| 賃料 | 990,760円 |
| 共益費 | 174,840円 |
| 坪単価 | 20,000円/坪(共益費込) |
| 預託金 | 10ヶ月 |
| 入居時期 | 即入居 |
| その他費用 | 償却: なし 礼金: なし 更新料・再契約料: なし |
| トイレ | 男女別 |
| 床仕様 | タイルカーペット |
物件概要
| 所在地 | 東京都中央区京橋2丁目18-2 |
|---|---|
| 交通 |
|
| 規模 | 地上8階 / 地下1階 |
| 竣工 | 1985年6月 |
| 耐震基準 | 新耐震基準 |
| 構造 | 鉄骨鉄筋コンクリート(SRC造) |
| 基準階坪数 | 58.93坪 |
物件詳細・設備
| エレベーター | 1基 |
|---|---|
| 駐車場 | なし |
| 空調 | 個別空調 |
| セキュリティ | 機械警備 |
明海京橋ビルの空室一覧
↓ 募集区画クリックで詳細情報をご覧いただけます
| 募集区画 | 面積 | 用途 | 賃料+共益費 | 坪単価(共益費込) | 入居時期 | 平面図 | お気に入り |
|---|---|---|---|---|---|---|---|
| NEW5階 | 58.28坪 | 事務所 | 1,165,600円 | 20,000円/坪 | 即入居 |
※表⽰⾦額は、敷⾦・保証⾦などの預かり⾦を除き、別途消費税がかかります。 / ※間取図は現況を優先させていただきます。 / ※駐車場は建物設備としての有無のため、有の場合でも賃貸条件としての空きを保証するものではありません。 / ※掲載情報の誤りや変更、未掲載情報の掲載依頼がございましたら、お手数ですが お問い合わせフォームよりご連絡ください。
近隣の条件が近い物件
掲載物件数:2,247件
4,107区画























建物詳細
明海京橋ビル(東京都中央区京橋2丁目18-2)は、最寄り駅「宝町」駅から徒歩約1分の地上8階・地下1階建ての賃貸オフィスビルです。竣工は1985年6月、エレベーターは1基あります。
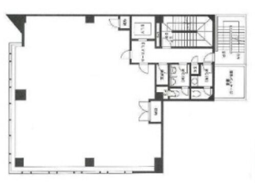
基準階貸室面積は約58.93坪です。貸室はほぼ正方形の形状で中央部に柱はなく、レイアウト効率の高い空間となっています。お手洗い等の共用部は執務室の外に配置されています。機械警備・個別空調・OAフロア・男女別トイレ等の設備仕様です。
最新の空室状況・賃貸条件などお気軽にお問合せ下さい。