03-6264-1890
受付時間 9:00 - 18:30 定休日 土日祝
受付時間 9:00 - 18:30 定休日 土日祝
明海京橋ビル 5階
物件情報
| 所在地 | 東京都中央区京橋2丁目18-2 |
|---|---|
| 最寄駅 |
都営浅草線 宝町駅 1分 東京メトロ銀座線 京橋駅 4分 東京メトロ日比谷線 八丁堀駅 5分 JR山手線 東京駅 9分 |
| 竣工 | 1985年6月 |
| 階数 | 地上8階 / 地下1階 |
| エレベーター | 1基 |
賃貸条件
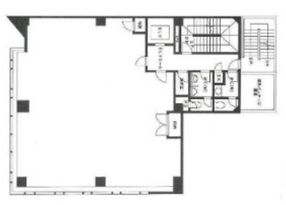
| 募集区画 | 5階 |
|---|---|
| 賃料 (共益費) | 990,760円(174,840円) |
| 敷金 /礼金 | 10ヶ月/なし |
|
保証金
/敷引/償却 |
-/-/なし |
| 面積 | 58.28坪 |
| 入居条件 | 即入居 |