賃貸条件
| 所在階 | 7階 |
|---|---|
| 用途 | 事務所 |
| 面積 | 69.96坪 / 231.27m² |
| 賃料 | 相談 |
| 共益費 | 賃料に含む |
| 坪単価 | - |
| 預託金 | 12ヶ月 |
| 入居時期 | 2026年10月上旬 |
| その他費用 |
償却: なし
更新料・再契約料: なし |
| 天井高 | 2,500mm |
| トイレ | 男女別 |
| 床仕様 | OAフロア |
物件概要
| 所在地 | 東京都豊島区南池袋1丁目13-23 |
|---|---|
| 交通 |
|
| 規模 | 地上8階 / 地下1階 |
| 竣工 | 1989年1月 |
| 耐震基準 | 新耐震基準 |
| 構造 | 鉄骨鉄筋コンクリート(SRC造) |
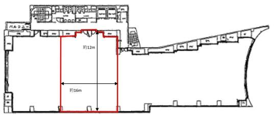
| 基準階坪数 | 218.0坪 |
| 基準階天井高 | 2,520mm |
| 延床面積 | 8,074.08㎡ |
物件詳細・設備
| エレベーター | 2基 |
|---|---|
| 駐車場 | あり 機械式・平面式併設 |
| 情報通信設備 | 光ファイバー |
| 空調 | 個別空調 |
| セキュリティ | 機械警備 |
JRE南池袋ビル(池袋YSビル)の空室一覧
↓ 募集区画クリックで詳細情報をご覧いただけます
| 募集区画 | 面積 | 用途 | 賃料+共益費 | 坪単価(共益費込) | 入居時期 | 平面図 | お気に入り |
|---|---|---|---|---|---|---|---|
| NEW 7階 | 69.96坪 | 事務所 | 相談 | - | 2026年10月上旬 |
|
※表示金額はすべて「税抜き表示」となっています。 / ※間取図は現況を優先させていただきます。 / ※駐車場は建物設備としての有無のため、有の場合でも賃貸条件としての空きを保証するものではありません。 / ※掲載情報の誤りや変更、未掲載情報の掲載依頼がございましたら、お手数ですが お問い合わせフォーム よりご連絡ください。
掲載物件数:2,346件
4,201区画
建物詳細
JRE南池袋ビル(旧:池袋YSビル、豊島区南池袋1丁目13-23)は、最寄り駅「池袋」駅から徒歩約6分の地上8階・地下1階建ての賃貸オフィスビルです。明治通りに面し、シンボル性が高く視認性に優れた外観が特徴です。竣工は1989年1月、エレベーターは2基設置されています。
基準階貸室面積は約218坪(分割募集の場合あり)、基準階天井高は2520mm、機械警備・個別空調・OAフロア・男女別トイレ等の設備仕様です。エレベーターホールやお手洗いなどは執務室の外に配置されており、使いやすい空間となっています。
最新の空室状況や賃料・賃貸条件など、お気軽にお問合せ下さい。