NEW

三田東宝 2階

最終情報更新日:2026/03/12
ビルコード: 1310304587
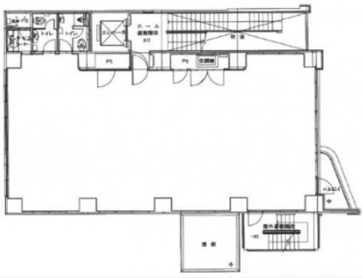
三田東宝 2階 平面図

賃貸条件

所在階 2階
用途 事務所
面積 55.81坪 / 184.49m²
賃料 948,770円
共益費 賃料に含む
坪単価 17,000円/坪 (共益費込)
預託金 12ヶ月
入居時期 即入居
その他費用 償却: なし
礼金: なし
更新料・再契約料: なし
トイレ 男女別
床仕様 OAフロア

物件概要

所在地 東京都港区三田3丁目1-7
交通
  • JR山手線 田町駅 5分
  • 都営三田線 三田駅 5分
規模 地上8階建て
竣工 1985年4月
耐震基準 新耐震基準
構造
基準階坪数 55.81坪
延床面積 1,482.04㎡

物件詳細・設備

エレベーター 1基
駐車場 あり 機械式駐車場
空調 個別空調
セキュリティ 機械警備

三田東宝の空室一覧

↓ 募集区画クリックで詳細情報をご覧いただけます

募集区画 面積 用途 賃料+共益費 坪単価(共益費込) 入居時期 平面図 お気に入り
NEW 2階 55.81坪 事務所 948,770円 17,000円/坪 即入居

近隣の条件が近い物件

東京都港区芝4丁目13-4

地上9階建て

56.03坪

都営浅草線 三田駅 2分

東京都港区三田3丁目11-36

地上8階 / 地下1階

55.18坪

京急本線 泉岳寺駅 3分

東京都港区芝浦3丁目15-6

地上6階建て

56.1坪

JR山手線 田町駅 6分

東京都港区芝4丁目7-8

地上10階建て

56.42坪

都営三田線 三田駅 5分

東京都港区芝大門1丁目10-18

地上9階建て

55.33坪

都営三田線 御成門駅 3分

東京都港区芝浦4丁目12-31

地上7階 / 地下1階

52.45坪

JR山手線 田町駅 10分

東京都港区芝公園1丁目1-12

地上10階 / 地下2階

56.46坪

都営三田線 御成門駅 1分

東京都港区芝4丁目5-11

地上10階 / 地下1階

50.23坪

都営三田線 三田駅 2分

東京都港区高輪3丁目24-18

地上10階 / 地下1階

55.22坪 〜 57.24坪

JR山手線 品川駅 5分

東京都港区浜松町2丁目9-6

地上6階建て

59.04坪

JR山手線 浜松町駅 1分

東京都港区芝5丁目25-2

地上9階建て

44.29坪

都営浅草線 三田駅 4分

東京都港区六本木6丁目1-8

地上10階 / 地下1階

57.09坪

東京メトロ日比谷線 六本木駅 1分

東京都港区虎ノ門4丁目1-40

地上8階 / 地下1階

56.9坪

東京メトロ日比谷線 虎ノ門ヒルズ駅 4分

東京都港区芝大門2丁目8-13

地上9階建て

50.62坪

都営大江戸線 大門駅 5分

東京都港区麻布十番2丁目1-2

地上9階建て

49.98坪

東京メトロ南北線 麻布十番駅 1分

東京都港区高輪2丁目17-13

地上9階 / 地下2階

61.9坪

京急本線 泉岳寺駅 1分

※表示金額はすべて「税抜き表示」となっています。 / ※間取図は現況を優先させていただきます。 / ※駐車場は建物設備としての有無のため、有の場合でも賃貸条件としての空きを保証するものではありません。 / ※掲載情報の誤りや変更、未掲載情報の掲載依頼がございましたら、お手数ですが お問い合わせフォーム よりご連絡ください。

掲載物件数:2,401件  4,337区画

お気に入りに追加