NEW

岡崎ビル(新宿区) 8階

最終情報更新日:2025/12/11
ビルコード:1310402161
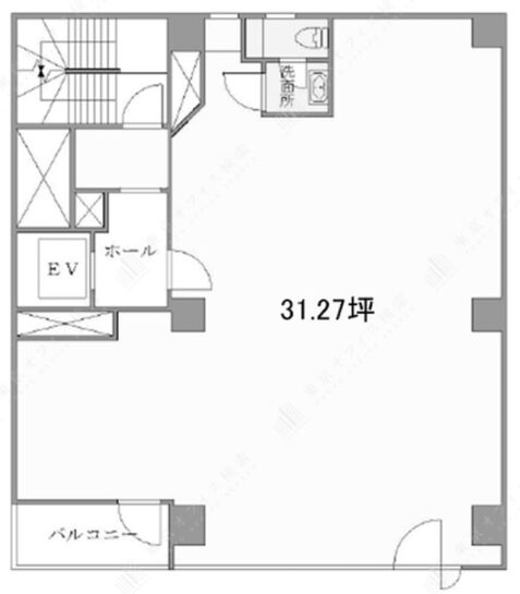
岡崎ビル(新宿区) 8階 平面図

賃貸条件

所在階8階
用途事務所
面積31.21坪 / 103.18m²
賃料500,320円
共益費93,810円
坪単価19,036円/坪(共益費込)
預託金12ヶ月
入居時期即入居
その他費用償却: 10%
礼金: なし
トイレ男女共用

物件概要

所在地東京都新宿区西新宿1丁目19-7
交通
  • 京王線 新宿駅 1分
規模地上10階建て
竣工1977年8月
構造鉄骨鉄筋コンクリート(SRC造)
基準階坪数31.0坪

物件詳細・設備

エレベーター1基
駐車場なし
空調個別空調
セキュリティ機械警備

岡崎ビル(新宿区)の空室一覧

↓ 募集区画クリックで詳細情報をご覧いただけます

募集区画面積用途賃料+共益費坪単価(共益費込)入居時期平面図お気に入り
NEW8階31.21坪事務所594,130円19,036円/坪即入居
NEW5階31.21坪事務所625,400円20,038円/坪即入居
NEW2階31.21坪事務所656,670円21,040円/坪即入居

※表⽰⾦額は、敷⾦・保証⾦などの預かり⾦を除き、別途消費税がかかります。 / ※間取図は現況を優先させていただきます。 / ※駐車場は建物設備としての有無のため、有の場合でも賃貸条件としての空きを保証するものではありません。 / ※掲載情報の誤りや変更、未掲載情報の掲載依頼がございましたら、お手数ですが お問い合わせフォームよりご連絡ください。

近隣の条件が近い物件

東京都新宿区西新宿2丁目4-1

地上30階 / 地下3階

31.97坪

JR山手線 新宿駅 7分

東京都新宿区西新宿3丁目1-3

地上11階 / 地下1階

28.5坪

JR山手線 新宿駅 6分

東京都新宿区西新宿2丁目1-1

地上55階 / 地下3階

31.15坪 〜 35.58坪

都営大江戸線 都庁前駅 1分

東京都渋谷区代々木1丁目11-2

地上6階建て

30.37坪

JR山手線 代々木駅 5分

東京都新宿区西新宿7丁目20-11

地上6階 / 地下1階

32.04坪

東京メトロ丸ノ内線 西新宿駅 2分

東京都新宿区西新宿8丁目5-1

地上8階 / 地下1階

32.32坪

東京メトロ丸ノ内線 西新宿駅 1分

東京都新宿区西新宿1丁目5-12

地上10階 / 地下1階

28.63坪

都営大江戸線 新宿西口駅 2分

東京都新宿区西新宿7丁目16-13

地上5階建て

31.49坪

都営大江戸線 新宿西口駅 3分

東京都新宿区西新宿2丁目3-1

地上30階 / 地下3階

35.97坪

JR山手線 新宿駅 2分

東京都新宿区西新宿4丁目32-4

地上13階建て

33.12坪

都営大江戸線 都庁前駅 6分

東京都新宿区西新宿8丁目10-3

地上4階建て

30.54坪

東京メトロ丸ノ内線 西新宿駅 3分

東京都新宿区西新宿3丁目2-9

地上25階 / 地下4階

27.23坪

都営大江戸線 都庁前駅 4分

東京都新宿区西新宿6丁目14-1

地上29階 / 地下4階

28.99坪

都営大江戸線 都庁前駅 3分

東京都新宿区西新宿6丁目12-4

地上12階建て

33.0坪

東京メトロ丸ノ内線 西新宿駅 5分

東京都新宿区西新宿8丁目14-24

地上8階 / 地下1階

29.62坪

東京メトロ丸ノ内線 西新宿駅 3分

東京都新宿区西新宿2丁目7-1

地上26階 / 地下4階

34.34坪

都営大江戸線 都庁前駅 2分

東京都新宿区西新宿1丁目26-2

地上50階 / 地下5階

27.18坪

JR山手線 新宿駅 7分

東京都新宿区新宿5丁目17-11

地上11階 / 地下2階

28.54坪

東京メトロ副都心線 新宿三丁目駅 1分

東京都渋谷区代々木3丁目23-4

地上11階建て

25.76坪

京王線 新宿駅 5分

掲載物件数:2,434件  4,413区画

お気に入りに追加