NEW

田中ビル(西新宿) 1階

最終情報更新日:2025/12/10
ビルコード:1310402160
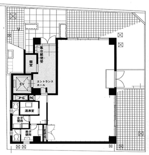
田中ビル(西新宿) 1階 平面図

賃貸条件

所在階1階
用途事務所
面積25.57坪 / 84.52m²
賃料357,980円
共益費51,140円
坪単価16,000円/坪(共益費込)
預託金8ヶ月
入居時期即入居
その他費用償却: なし
礼金: 2ヶ月
トイレ男女別

物件概要

所在地東京都新宿区西新宿8丁目1-14
交通
  • 東京メトロ丸ノ内線 西新宿駅 2分
  • JR山手線 新宿駅 10分
規模地上4階建て
竣工1993年3月
耐震基準新耐震基準
構造鉄筋コンクリート(RC造)

物件詳細・設備

エレベーター1基
駐車場あり
情報通信設備光ファイバー
空調個別空調
セキュリティ機械警備

田中ビル(西新宿)の空室一覧

↓ 募集区画クリックで詳細情報をご覧いただけます

募集区画面積用途賃料+共益費坪単価(共益費込)入居時期平面図お気に入り
NEW2階37.29坪事務所559,350円15,000円/坪即入居
NEW1階25.57坪事務所409,120円16,000円/坪即入居

※表⽰⾦額は、敷⾦・保証⾦などの預かり⾦を除き、別途消費税がかかります。 / ※間取図は現況を優先させていただきます。 / ※駐車場は建物設備としての有無のため、有の場合でも賃貸条件としての空きを保証するものではありません。 / ※掲載情報の誤りや変更、未掲載情報の掲載依頼がございましたら、お手数ですが お問い合わせフォームよりご連絡ください。

近隣の条件が近い物件

東京都新宿区西新宿1丁目26-2

地上50階 / 地下5階

27.18坪

JR山手線 新宿駅 7分

東京都新宿区西新宿2丁目7-1

地上26階 / 地下4階

26.86坪

都営大江戸線 都庁前駅 2分

東京都新宿区西新宿6丁目20-12

地上10階建て

26.47坪

都営大江戸線 西新宿五丁目駅 7分

東京都新宿区西新宿7丁目21-1

地上10階 / 地下1階

25.08坪

東京メトロ丸ノ内線 西新宿駅 3分

東京都新宿区西新宿8丁目14-24

地上8階 / 地下1階

29.62坪

東京メトロ丸ノ内線 西新宿駅 3分

東京都新宿区西新宿6丁目14-1

地上29階 / 地下4階

28.99坪

都営大江戸線 都庁前駅 3分

東京都新宿区西新宿7丁目15-1

地上8階建て

20.92坪

都営大江戸線 新宿西口駅 2分

東京都新宿区新宿5丁目17-11

地上11階 / 地下2階

25.86坪 〜 28.54坪

東京メトロ副都心線 新宿三丁目駅 1分

東京都渋谷区代々木3丁目23-4

地上11階建て

25.76坪

京王線 新宿駅 5分

東京都新宿区西新宿7丁目20-11

地上6階 / 地下1階

32.04坪

東京メトロ丸ノ内線 西新宿駅 2分

東京都新宿区西新宿8丁目5-1

地上8階 / 地下1階

32.32坪

東京メトロ丸ノ内線 西新宿駅 1分

東京都新宿区西新宿6丁目24-1

地上27階 / 地下2階

20.97坪

東京メトロ丸ノ内線 西新宿駅 4分

東京都新宿区西新宿2丁目1-1

地上55階 / 地下3階

31.15坪

都営大江戸線 都庁前駅 1分

東京都新宿区西新宿3丁目1-3

地上11階 / 地下1階

28.5坪

JR山手線 新宿駅 6分

東京都渋谷区千駄ヶ谷5丁目32-4

地上8階建て

25.15坪

東京メトロ丸ノ内線 新宿三丁目駅 3分

東京都新宿区新宿1丁目16-10

地上10階建て

25.16坪

東京メトロ丸ノ内線 新宿御苑前駅 3分

東京都新宿区西新宿8丁目8-6

地上8階 / 地下1階

17.24坪

東京メトロ丸ノ内線 西新宿駅 4分

東京都新宿区新宿1丁目8-5

地上9階 / 地下1階

24.34坪

東京メトロ丸ノ内線 新宿御苑前駅 1分

掲載物件数:2,413件  4,388区画

お気に入りに追加