
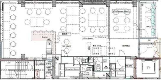
賃貸条件
| 所在階 | 6階内装付 |
|---|---|
| 用途 | 事務所 |
| 面積 | 35.41坪 / 117.05m² |
| 賃料 | 1,310,170円 |
| 共益費 | 賃料に含む |
| 坪単価 | 37,000円/坪(共益費込) |
| 預託金 | なし |
| 入居時期 | 2026年2月上旬 |
| その他費用 | 償却: なし 礼金: なし 更新料・再契約料: 新賃料1ヶ月 |
| 天井高 | 2,800mm |
| トイレ | 男女別 |
| 床仕様 | OAフロア・タイルカーペット |
物件概要
| 所在地 | 東京都港区芝浦3丁目6-12 |
|---|---|
| 交通 |
|
| 規模 | 地上8階建て |
| 竣工 | 2026年1月 |
| 耐震基準 | 新耐震基準 |
| 構造 | 鉄筋コンクリート(RC造) |
物件詳細・設備
| エレベーター | 1基 |
|---|---|
| セキュリティ | 機械警備 |
CADRE tamachi(キャドレ田町)の空室一覧
↓ 募集区画クリックで詳細情報をご覧いただけます
| 募集区画 | 面積 | 用途 | 賃料+共益費 | 坪単価(共益費込) | 入居時期 | 平面図 | お気に入り |
|---|---|---|---|---|---|---|---|
| 8階内装付 | 23.92坪 | 事務所 | 932,880円 | 39,000円/坪 | 2026年2月上旬 | ||
| 7階内装付 | 35.41坪 | 事務所 | 1,451,810円 | 41,000円/坪 | 2026年2月上旬 | ||
| 6階内装付 | 35.41坪 | 事務所 | 1,310,170円 | 37,000円/坪 | 2026年2月上旬 | ||
| 5階内装付 | 35.41坪 | 事務所 | 1,310,170円 | 37,000円/坪 | 2026年2月上旬 | ||
| 4階内装付 | 31.42坪 | 事務所 | 1,162,540円 | 37,000円/坪 | 2026年2月上旬 | ||
| 3階 | 29.6坪 | 店舗 | 917,600円 | 31,000円/坪 | 2026年2月上旬 | ||
| 2階 | 31.48坪 | 店舗 | 1,038,840円 | 33,000円/坪 | 2026年2月上旬 | ||
| 1階 | 19.76坪 | 店舗 | 731,120円 | 37,000円/坪 | 2026年2月上旬 |
※表⽰⾦額は、敷⾦・保証⾦などの預かり⾦を除き、別途消費税がかかります。 / ※間取図は現況を優先させていただきます。 / ※駐車場は建物設備としての有無のため、有の場合でも賃貸条件としての空きを保証するものではありません。 / ※掲載情報の誤りや変更、未掲載情報の掲載依頼がございましたら、お手数ですが お問い合わせフォームよりご連絡ください。
近隣の条件が近い物件
掲載物件数:2,440件
4,434区画






