03-6264-1890
受付時間 9:00 - 18:30 定休日 土日祝
受付時間 9:00 - 18:30 定休日 土日祝
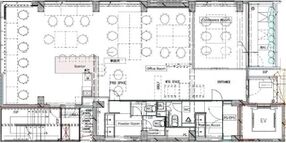
CADRE tamachi(キャドレ田町) 6階
物件情報
| 所在地 | 東京都港区芝浦3丁目6-12 |
|---|---|
| 最寄駅 | JR山手線 田町駅 5分 都営三田線 三田駅 8分 ゆりかもめ 芝浦ふ頭駅 9分 |
| 竣工 | 2026年1月 |
| 階数 | 地上8階建て |
| エレベーター | 1基 |
賃貸条件
| 募集区画 | 6階 |
|---|---|
| 賃料(共益費) | 1,310,170円(賃料に含む) |
| 敷金/礼金 | なし/なし |
| 保証金 /敷引/償却 | -/-/なし |
| 面積 | 35.41坪 |
| 入居条件 | 2026年2月上旬 |