(仮称)S-Frontier渋谷青山通り(旧:エキスパートオフィス渋谷) 5階
充実の共用スペースが嬉しいフレキシブルセットアップオフィスが青山通り沿いに誕生!
最終情報更新日:2025/12/17
ビルコード:1311303115

賃貸条件
| 所在階 | 5階 |
|---|---|
| 用途 | 事務所 |
| 面積 | 34.17坪 / 112.98m² |
| 賃料 | 相談 |
| 共益費 | 賃料に含む |
| 坪単価 | - |
| 預託金 | なし |
| 入居時期 | 即入居 |
| その他費用 | 償却: なし 礼金: なし 更新料・再契約料: なし |
| 天井高 | 3,300mm |
| トイレ | 男女別 |
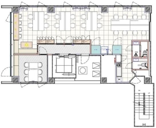
| その他 | 【内装・什器付セットアップ】執務室(20席)、6名用専用会議室、受付、ラウンジスペース、テレカンブース2室 |
物件概要
| 所在地 | 東京都渋谷区渋谷2丁目10-15 |
|---|---|
| 交通 |
|
| 規模 | 地上10階建て |
| 竣工 | 2014年8月 |
| 耐震基準 | 新耐震基準 |
| 構造 | 鉄骨(S造) |
物件詳細・設備
| エレベーター | 1基 |
|---|---|
| 空調 | 個別空調 |
| セキュリティ | 機械警備 |
| 建物設備 | 1階共用部 テレカンブース(6室)・貸会議室(6名用×2室) |
| リニューアル履歴 | 2025年10月 1階共用部・エントランスリニューアル |
※表⽰⾦額は、敷⾦・保証⾦などの預かり⾦を除き、別途消費税がかかります。 / ※間取図は現況を優先させていただきます。 / ※駐車場は建物設備としての有無のため、有の場合でも賃貸条件としての空きを保証するものではありません。 / ※掲載情報の誤りや変更、未掲載情報の掲載依頼がございましたら、お手数ですが お問い合わせフォームよりご連絡ください。
近隣の条件が近い物件
掲載物件数:2,397件
4,360区画





























































担当者からのコメント
機能性・快適性に優れたセットアップオフィスのご紹介です。オフィス家具付・敷金無。初期費用を削減。 入居時クリーニング費用負担で、退去時原状回復費用なし!(現状変更した場合や破損等を除く) さらに、1階共用部にはテレカンブース(6室)・貸会議室2室も設置されており、フレキシブル・柔軟にワークスペースを利用できるおススメのオフィスとなっております。 最新の募集状況・賃貸条件など、お気軽にお問合せ下さい。