
賃貸条件
| 所在階 | 7階 |
|---|---|
| 用途 | 事務所 |
| 面積 | 68.27坪 / 225.68m² |
| 賃料 | 相談 |
| 共益費 | 賃料に含む |
| 坪単価 | - |
| 預託金 | 6ヶ月 |
| 入居時期 | 2026年10月上旬 |
| その他費用 | 償却: なし 礼金: 1ヶ月 更新料・再契約料: 新賃料1ヶ月 |
| 天井高 | 2,700mm |
| トイレ | 男女別 |
| 床仕様 | OAフロア |
物件概要
| 所在地 | 東京都新宿区四谷1丁目3 |
|---|---|
| 交通 |
|
| 規模 | 地上10階建て |
| 竣工 | 2026年9月 |
| 耐震基準 | 新耐震基準 |
| 構造 | 鉄骨(S造) |
物件詳細・設備
| エレベーター | 2基 |
|---|---|
| 駐車場 | あり |
| セキュリティ | 機械警備 |
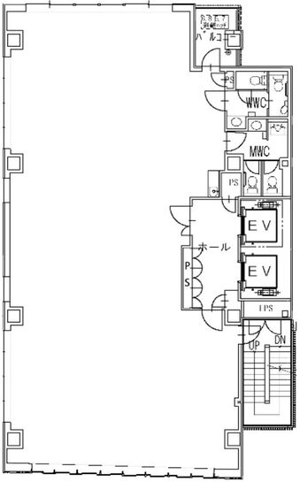
※表⽰⾦額は、敷⾦・保証⾦などの預かり⾦を除き、別途消費税がかかります。 / ※間取図は現況を優先させていただきます。 / ※駐車場は建物設備としての有無のため、有の場合でも賃貸条件としての空きを保証するものではありません。 / ※掲載情報の誤りや変更、未掲載情報の掲載依頼がございましたら、お手数ですが お問い合わせフォームよりご連絡ください。
近隣の条件が近い物件
掲載物件数:2,388件
4,334区画


