御成門コープ 2階

最終情報更新日:2025/11/07
ビルコード:1310304365
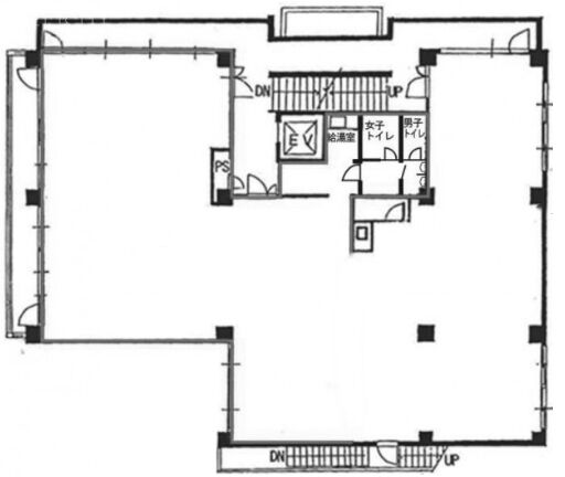
御成門コープ 2階 平面図

賃貸条件

所在階2階
用途事務所
面積28.49坪 / 94.18m²
賃料398,860円
共益費賃料に含む
坪単価14,000円/坪(共益費込)
預託金2,405,822円
入居時期即入居
その他費用償却: 2ヶ月
礼金: なし
更新料・再契約料: 新賃料1ヶ月

物件概要

所在地東京都港区西新橋3丁目24-1
交通
  • 都営三田線 御成門駅 1分
  • 東京メトロ日比谷線 神谷町駅 9分
  • 都営大江戸線 大門駅 9分
  • JR山手線 新橋駅 13分
規模地上5階建て
竣工1970年10月
構造鉄筋コンクリート(RC造)

物件詳細・設備

エレベーター1基
駐車場あり
情報通信設備光ファイバー
空調個別空調

御成門コープの空室一覧

↓ 募集区画クリックで詳細情報をご覧いただけます

募集区画面積用途賃料+共益費坪単価(共益費込)入居時期平面図お気に入り
2階A45.0坪事務所630,000円14,000円/坪即入居
2階28.49坪事務所398,860円14,000円/坪即入居

※表⽰⾦額は、敷⾦・保証⾦などの預かり⾦を除き、別途消費税がかかります。 / ※間取図は現況を優先させていただきます。 / ※駐車場は建物設備としての有無のため、有の場合でも賃貸条件としての空きを保証するものではありません。 / ※掲載情報の誤りや変更、未掲載情報の掲載依頼がございましたら、お手数ですが お問い合わせフォームよりご連絡ください。

近隣の条件が近い物件

東京都港区西新橋3丁目23-6

地上8階 / 地下1階

29.0坪

都営三田線 御成門駅 1分

東京都港区西新橋3丁目24-12

地上5階建て

25.71坪

都営三田線 御成門駅 1分

東京都港区新橋5丁目7-8

地上9階建て

28.78坪

都営三田線 御成門駅 4分

東京都港区新橋5丁目28-7

地上8階建て

29.34坪

JR山手線 新橋駅 6分

東京都港区虎ノ門3丁目10-3

地上6階建て

27.5坪

東京メトロ日比谷線 神谷町駅 4分

東京都港区芝公園3丁目4-30

地上10階 / 地下4階

28.95坪

都営三田線 御成門駅 6分

東京都港区虎ノ門5丁目13-1

地上9階 / 地下3階

29.6坪

東京メトロ日比谷線 神谷町駅 0分

東京都港区虎ノ門3丁目8-21

地上10階 / 地下2階

27.8坪

東京メトロ日比谷線 虎ノ門ヒルズ駅 2分

東京都港区芝公園3丁目5-8

地上6階 / 地下4階

28.88坪

東京メトロ日比谷線 神谷町駅 8分

東京都港区新橋5丁目27-3

地上7階 / 地下1階

30.86坪

都営三田線 御成門駅 3分

東京都港区新橋4丁目24-11

地上9階 / 地下1階

26.86坪

JR山手線 新橋駅 5分

東京都港区芝大門1丁目4-9

地上9階建て

26.73坪

都営浅草線 大門駅 1分

東京都港区新橋5丁目7-12

地上10階 / 地下1階

31.14坪

JR山手線 新橋駅 8分

東京都港区東新橋2丁目16-3

地上9階建て

26.5坪

都営大江戸線 汐留駅 5分

東京都港区新橋4丁目7-2

地上8階 / 地下1階

26.0坪

JR山手線 新橋駅 5分

東京都港区新橋5丁目35-10

地上6階 / 地下2階

24.5坪

都営三田線 御成門駅 3分

東京都港区新橋2丁目13-3

地上4階建て

30.18坪

JR山手線 新橋駅 5分

掲載物件数:2,348件  4,298区画

お気に入りに追加