御成門コープ 2階A

最終情報更新日:2026/03/06
ビルコード: 1310304365
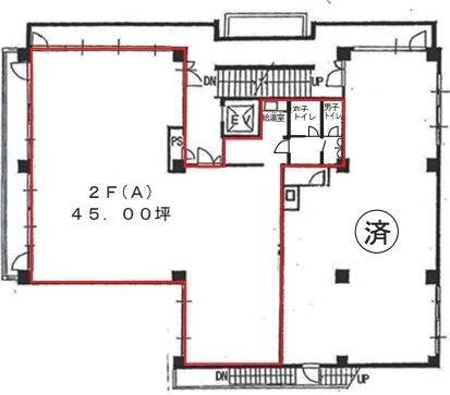
御成門コープ 2階A 平面図

賃貸条件

所在階 2階
用途 事務所
面積 45.0坪 / 148.76m²
賃料 630,000円
共益費 賃料に含む
坪単価 14,000円/坪 (共益費込)
預託金 3,800,000円
入居時期 即入居
その他費用 償却: 2ヶ月
礼金: なし
更新料・再契約料: 新賃料1ヶ月
トイレ 男女別

物件概要

所在地 東京都港区西新橋3丁目24-1
交通
  • 都営三田線 御成門駅 1分
  • 東京メトロ日比谷線 神谷町駅 9分
  • 都営大江戸線 大門駅 9分
  • JR山手線 新橋駅 13分
規模 地上5階建て
竣工 1970年10月
構造 鉄筋コンクリート(RC造)

物件詳細・設備

エレベーター 1基
駐車場 あり
情報通信設備 光ファイバー
空調 個別空調

御成門コープの空室一覧

↓ 募集区画クリックで詳細情報をご覧いただけます

募集区画 面積 用途 賃料+共益費 坪単価(共益費込) 入居時期 平面図 お気に入り
2階A 45.0坪 事務所 630,000円 14,000円/坪 即入居
2階A1 28.49坪 事務所 398,860円 14,000円/坪 即入居
2階A2 16.51坪 事務所 231,140円 14,000円/坪 即入居

近隣の条件が近い物件

東京都港区芝公園1丁目1-11

地上9階 / 地下1階

44.64坪

都営三田線 御成門駅 1分

東京都港区新橋5丁目23-7

地上14階 / 地下1階

43.04坪 〜 45.4坪

都営三田線 御成門駅 4分

東京都港区新橋6丁目9-4

地上8階 / 地下2階

45.71坪

JR山手線 新橋駅 5分

東京都港区芝公園3丁目4-30

地上10階 / 地下4階

45.57坪

都営三田線 御成門駅 6分

東京都港区芝公園3丁目5-8

地上6階 / 地下4階

44.2坪

東京メトロ日比谷線 神谷町駅 8分

東京都港区西新橋1丁目16-3

地上9階建て

44.81坪

都営三田線 内幸町駅 4分

東京都港区虎ノ門1丁目17-1

地上36階 / 地下3階

43.9坪

東京メトロ日比谷線 虎ノ門ヒルズ駅 0分

東京都港区浜松町2丁目1-16

地上10階建て

43.66坪

都営浅草線 大門駅 1分

東京都港区東新橋2丁目11-4

地上11階建て

48.26坪

都営三田線 御成門駅 5分

東京都港区海岸1丁目2-20

地上24階 / 地下2階

44.77坪

JR山手線 浜松町駅 2分

東京都港区虎ノ門3丁目20-4

地上8階建て

40.87坪

東京メトロ日比谷線 神谷町駅 3分

東京都港区東新橋1丁目9-1

地上37階 / 地下4階

43.5坪

都営大江戸線 汐留駅 1分

東京都港区芝大門1丁目1-15

地上6階建て

40.0坪

都営浅草線 大門駅 4分

東京都港区芝大門1丁目6-1

地上5階 / 地下1階

40.38坪

都営大江戸線 大門駅 3分

東京都港区虎ノ門3丁目6-2

地上9階 / 地下2階

48.44坪

東京メトロ日比谷線 神谷町駅 5分

※表示金額はすべて「税抜き表示」となっています。 / ※間取図は現況を優先させていただきます。 / ※駐車場は建物設備としての有無のため、有の場合でも賃貸条件としての空きを保証するものではありません。 / ※掲載情報の誤りや変更、未掲載情報の掲載依頼がございましたら、お手数ですが お問い合わせフォーム よりご連絡ください。

掲載物件数:2,395件  4,306区画

お気に入りに追加