ebisu422(旧:ユニゾebisu422)の空室一覧
↓ 募集区画クリックで詳細情報をご覧いただけます
| 募集区画 | 面積 | 用途 | 賃料+共益費 | 坪単価(共益費込) | 入居時期 | 平面図 | お気に入り |
|---|---|---|---|---|---|---|---|
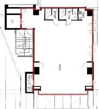
| NEW8階 | 28.95坪 | 事務所 | 相談 | - | 2026年4月中旬 |
※表⽰⾦額は、敷⾦・保証⾦などの預かり⾦を除き、別途消費税がかかります。 / ※間取図は現況を優先させていただきます。 / ※駐車場は建物設備としての有無のため、有の場合でも賃貸条件としての空きを保証するものではありません。 / ※掲載情報の誤りや変更、未掲載情報の掲載依頼がございましたら、お手数ですが お問い合わせフォームよりご連絡ください。
近隣の条件が近い物件
掲載物件数:2,441件
4,429区画


















建物詳細
ebisu422(東京都渋谷区恵比寿4丁目22-10)は、最寄り駅「恵比寿」駅から徒歩約6分の地上9階・地下1階建ての賃貸オフィスビルです。ビルの竣工は1993年3月、エレベーターは1基設置されています。
各階の貸室面積は異なり、2階は約80坪、3階は約70坪、上層階は30坪弱となっています。
エントランスホールはお洒落な内装。盆踊りなども開催される「ビール坂」に面しており、恵比寿の街でオフィスを開設したい企業様におすすめです。
最新の空室状況や賃料・賃貸条件など、お気軽にお問合せ下さい。