03-6264-1890
受付時間 9:00 - 18:30 定休日 土日祝
受付時間 9:00 - 18:30 定休日 土日祝
ebisu422(旧:ユニゾebisu422) 8階
物件情報
| 所在地 | 東京都渋谷区恵比寿4丁目22-10 |
|---|---|
| 最寄駅 | JR山手線 恵比寿駅 6分 |
| 竣工 | 1993年3月 |
| 階数 | 地上9階 / 地下1階 |
| エレベーター | 1基 |
賃貸条件
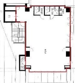
| 募集区画 | 8階 |
|---|---|
| 賃料(共益費) | 相談(賃料に含む) |
| 敷金/礼金 | 12ヶ月/- |
| 保証金 /敷引/償却 | なし |
| 面積 | 28.95坪 |
| 入居条件 | 2026年4月中旬 |