
賃貸条件
| 所在階 | 1階 |
|---|---|
| 用途 | 店舗 |
| 面積 | 32.33坪 / 106.87m² |
| 賃料 | 相談 |
| 共益費 | 相談 |
| 坪単価 | - |
| 預託金 | 10ヶ月 |
| 入居時期 | 2026年5月上旬 |
| その他費用 | 償却: なし 礼金: 1ヶ月 更新料・再契約料: 1ヶ月 |
| 天井高 | 3,745mm |
| トイレ | なし |
| その他 | スケルトン渡し/重飲食相談可(匂いの強い業種難) |
物件概要
| 所在地 | 東京都港区六本木2丁目3-3 |
|---|---|
| 交通 |
|
| 規模 | 地上14階建て |
| 竣工 | 2023年9月 |
| 耐震基準 | 新耐震基準 |
| 構造 | 鉄骨(S造) |
物件詳細・設備
| エレベーター | 2基 |
|---|---|
| 情報通信設備 | 光ファイバー |
| 空調 | 個別空調 |
| セキュリティ | 機械警備 |
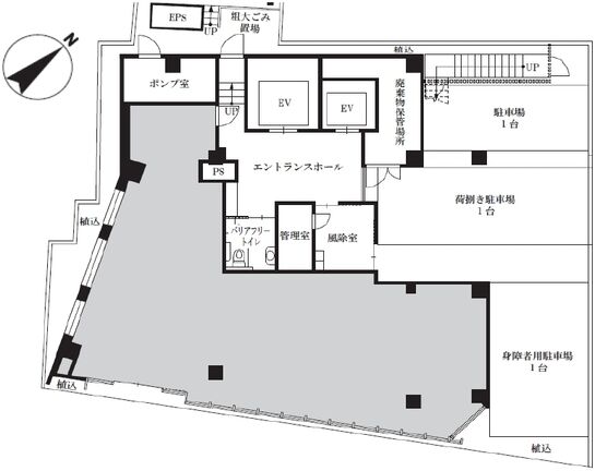
※表⽰⾦額は、敷⾦・保証⾦などの預かり⾦を除き、別途消費税がかかります。 / ※間取図は現況を優先させていただきます。 / ※駐車場は建物設備としての有無のため、有の場合でも賃貸条件としての空きを保証するものではありません。 / ※掲載情報の誤りや変更、未掲載情報の掲載依頼がございましたら、お手数ですが お問い合わせフォームよりご連絡ください。
近隣の条件が近い物件
掲載物件数:2,421件
4,390区画













建物詳細
VORT六本木一丁目(旧:d_ll六本木、ディール六本木、港区六本木2丁目3-3)は、2023年9月竣工、地上14階建てのオフィスビルです。基準階貸室面積は44.77坪、オフィスフロアは内装付きセットアップオフィスとなります。
詳細につきましてはお気軽にお問合せください。