03-6264-1890
受付時間 9:00 - 18:30 定休日 土日祝
受付時間 9:00 - 18:30 定休日 土日祝
VORT六本木一丁目(旧:d_ll六本木(ディール六本木)) 1階
物件情報
| 所在地 | 東京都港区六本木2丁目3-3 |
|---|---|
| 最寄駅 |
東京メトロ南北線 六本木一丁目駅 3分 東京メトロ銀座線 溜池山王駅 6分 東京メトロ日比谷線 六本木駅 8分 |
| 竣工 | 2023年9月 |
| 階数 | 地上14階建て |
| エレベーター | 2基 |
賃貸条件
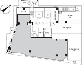
| 募集区画 | 1階 |
|---|---|
| 賃料 (共益費) | -(相談) |
| 敷金 /礼金 | 10ヶ月/1ヶ月 |
|
保証金
/敷引/償却 |
-/-/なし |
| 面積 | 32.33坪 |
| 入居条件 | 2026年5月上旬 |