太陽ビル(豊島区) 地下1階

最終情報更新日:2025/11/20
ビルコード:1311600416
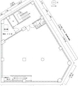
太陽ビル(豊島区) 地下1階 平面図

賃貸条件

所在階地下1階
用途事務所
面積52.64坪 / 174.01m²
賃料1,500,000円
共益費賃料に含む
坪単価28,495円/坪(共益費込)
預託金6ヶ月
入居時期即入居
その他費用償却: 2ヶ月
礼金: 1ヶ月
更新料・再契約料: 1ヶ月
トイレ男女別
その他スケルトン/専用階段有

物件概要

所在地東京都豊島区東池袋1丁目19-10
交通
  • JR山手線 池袋駅 5分
  • 東京メトロ有楽町線 東池袋駅 9分
規模地上6階 / 地下1階
竣工1971年1月
構造鉄筋コンクリート(RC造)

物件詳細・設備

エレベーター1基
セキュリティ機械警備

太陽ビル(豊島区)の空室一覧

↓ 募集区画クリックで詳細情報をご覧いただけます

募集区画面積用途賃料+共益費坪単価(共益費込)入居時期平面図お気に入り
5階18.2坪事務所相談-即入居
地下1階52.64坪事務所1,500,000円28,495円/坪即入居

※表⽰⾦額は、敷⾦・保証⾦などの預かり⾦を除き、別途消費税がかかります。 / ※間取図は現況を優先させていただきます。 / ※駐車場は建物設備としての有無のため、有の場合でも賃貸条件としての空きを保証するものではありません。 / ※掲載情報の誤りや変更、未掲載情報の掲載依頼がございましたら、お手数ですが お問い合わせフォームよりご連絡ください。

近隣の条件が近い物件

東京都豊島区東池袋1丁目41-6

地上10階 / 地下1階

54.12坪

JR山手線 池袋駅 1分

東京都豊島区東池袋4丁目-25

地上12階建て

53.74坪

東京メトロ有楽町線 東池袋駅 5分

東京都豊島区東池袋3丁目22-17

地上7階 / 地下1階

51.84坪

東京メトロ有楽町線 東池袋駅 8分

東京都豊島区南池袋2丁目17-7

地上13階建て

50.12坪 〜 69.5坪

JR山手線 池袋駅 5分

東京都豊島区西池袋1丁目17-10

地上8階 / 地下1階

55.34坪

JR山手線 池袋駅 2分

東京都豊島区池袋2丁目14-4

地上9階 / 地下1階

55.77坪

JR山手線 池袋駅 5分

東京都豊島区西池袋1丁目18-6

地上7階建て

46.25坪

JR山手線 池袋駅 4分

東京都豊島区東池袋1丁目21-11

地上12階 / 地下3階

43.09坪

JR山手線 池袋駅 4分

東京都豊島区南池袋2丁目35-4

地上8階 / 地下1階

44.3坪

東京メトロ有楽町線 東池袋駅 4分

東京都豊島区東池袋1丁目21-1

地上8階 / 地下2階

39.89坪

JR山手線 池袋駅 4分

東京都文京区小石川5丁目36-5

地上7階 / 地下1階

53.4坪

東京メトロ丸ノ内線 茗荷谷駅 6分

東京都豊島区駒込3丁目3-17

地上7階 / 地下1階

51.94坪 〜 57.15坪

JR山手線 駒込駅 2分

東京都豊島区南池袋2丁目28-14

地上9階 / 地下2階

67.24坪

JR山手線 池袋駅 4分

東京都豊島区西池袋3丁目30-3

地上8階 / 地下1階

40.19坪

JR山手線 池袋駅 4分

東京都豊島区東池袋3丁目4-3

地上14階 / 地下1階

71.07坪

JR山手線 池袋駅 6分

東京都新宿区新小川町6-36

地上14階 / 地下1階

53.05坪

JR中央・総武線 飯田橋駅 8分

東京都豊島区北大塚2丁目15-9

地上10階建て

39.3坪

JR山手線 大塚駅 1分

東京都豊島区南池袋2丁目8-5

地上7階 / 地下1階

35.19坪

東京メトロ有楽町線 東池袋駅 5分

掲載物件数:2,369件  4,322区画

お気に入りに追加