NEW

P's GAIENMAE 10階

スタジアム通り沿いに誕生!
最終情報更新日:2026/04/10
ビルコード: 1310304105
隣にコンビニがあります 隣にコンビニがあります
隣にコンビニがあります
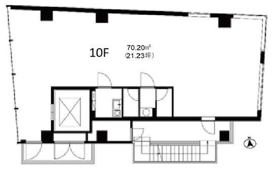
P's GAIENMAE 10階 平面図

賃貸条件

所在階 10階
用途 事務所、店舗
面積 21.23坪 / 70.2m²
賃料 相談
共益費 相談
坪単価 -
預託金 相談
入居時期 2026年6月上旬
その他費用 償却: 1ヶ月
天井高 3,520mm
床仕様 OAフロア
その他 飲食不可

物件概要

所在地 東京都港区北青山2丁目7-27
交通
  • 東京メトロ銀座線 外苑前駅 2分
  • 東京メトロ銀座線 表参道駅 10分
  • 東京メトロ半蔵門線 青山一丁目駅 10分
規模 地上10階建て
竣工 2022年11月
耐震基準 新耐震基準
構造 鉄骨(S造)
基準階坪数 21.0坪

物件詳細・設備

エレベーター 1基
空調 個別空調
セキュリティ 機械警備

P's GAIENMAEの空室一覧

↓ 募集区画クリックで詳細情報をご覧いただけます

募集区画 面積 用途 賃料+共益費 坪単価(共益費込) 入居時期 平面図 お気に入り
NEW 10階 21.23坪 事務所、店舗 相談 - 2026年6月上旬
NEW 4階 19.9坪 事務所、店舗 相談 - 2026年4月上旬

※表示金額はすべて「税抜き表示」となっています。 / ※間取図は現況を優先させていただきます。 / ※駐車場は建物設備としての有無のため、有の場合でも賃貸条件としての空きを保証するものではありません。 / ※掲載情報の誤りや変更、未掲載情報の掲載依頼がございましたら、お手数ですが お問い合わせフォーム よりご連絡ください。

掲載物件数:2,344件  4,203区画

お気に入りに追加