03-6264-1890
受付時間 9:00 - 18:30 定休日 土日祝
受付時間 9:00 - 18:30 定休日 土日祝
P's GAIENMAE 10階
物件情報
| 所在地 | 東京都港区北青山2丁目7-27 |
|---|---|
| 最寄駅 |
東京メトロ銀座線 外苑前駅 2分 東京メトロ銀座線 表参道駅 10分 東京メトロ半蔵門線 青山一丁目駅 10分 |
| 竣工 | 2022年11月 |
| 階数 | 地上10階建て |
| エレベーター | 1基 |
賃貸条件
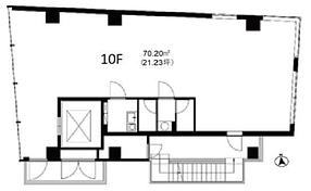
| 募集区画 | 10階 |
|---|---|
| 賃料 (共益費) | 相談(相談) |
| 敷金 /礼金 | -/- |
|
保証金
/敷引/償却 |
相談/-/1ヶ月 |
| 面積 | 21.23坪 |
| 入居条件 | 2026年6月上旬 |