Nビル(東品川) 3階(西側区画)

最終情報更新日:2026/03/06
ビルコード: 1310900319
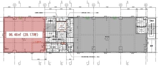
Nビル(東品川) 3階(西側区画) 平面図
建物詳細

Nビル(品川区東品川2丁目)は、りんかい線 天王洲アイル駅徒歩4分の賃貸オフィスビルです。

ビルの竣工は1986年9月(新耐震基準)、建物規模は地上5階建てです。

2008年 リニューアル済。エレベーターは1基あります。

貸室基準階のフロア面積は91.26坪、天井高は3600mmです。

設備面では個別空調・男女別トイレなどが備わっています。

最新の空室状況や賃料・賃貸条件など、お気軽にお問合せ下さい。

賃貸条件

所在階 3階
用途 事務所
面積 29.17坪 / 96.42m²
賃料 510,475円
共益費 33,000円
坪単価 17,500円/坪 (共益費込)
預託金 6ヶ月
入居時期 相談
その他費用 礼金: 1ヶ月
トイレ 男女別

物件概要

所在地 東京都品川区東品川2丁目2-33
交通
  • りんかい線 天王洲アイル駅 4分
  • 東京モノレール 天王洲アイル駅 5分
規模 地上5階建て
竣工 1986年10月
耐震基準 新耐震基準
構造 鉄筋コンクリート(RC造)
基準階坪数 91.26坪
基準階天井高 3,600mm

物件詳細・設備

エレベーター 1基
駐車場 あり
情報通信設備 光ファイバー
空調 個別空調
リニューアル履歴 2008年 リニューアル済

Nビル(東品川)の空室一覧

↓ 募集区画クリックで詳細情報をご覧いただけます

募集区画 面積 用途 賃料+共益費 坪単価(共益費込) 入居時期 平面図 お気に入り
3階 90.95坪 事務所 1,455,000円 15,000円/坪 相談
3階(西側区画) 29.17坪 事務所 543,475円 17,500円/坪 相談

近隣の条件が近い物件

東京都品川区東品川2丁目2-20

地上25階 / 地下2階

23.75坪

東京モノレール 天王洲アイル駅 1分

東京都品川区東品川2丁目3-12

地上30階 / 地下2階

37.04坪 〜 42.11坪

東京モノレール 天王洲アイル駅 1分

東京都港区港南2丁目16-3

地上32階 / 地下3階

34.04坪

JR山手線 品川駅 3分

東京都品川区東品川3丁目27-17

地上5階 / 地下1階

25.2坪

りんかい線 品川シーサイド駅 5分

東京都品川区東品川4丁目12-6

地上22階 / 地下2階

25.87坪

りんかい線 品川シーサイド駅 1分

東京都港区港南2丁目16-5

地上29階 / 地下3階

34.67坪

JR山手線 品川駅 5分

東京都品川区北品川5丁目5-15

地上20階 / 地下2階

31.21坪

JR山手線 大崎駅 5分

東京都品川区東品川2丁目2-8

地上28階 / 地下2階

40.25坪

東京モノレール 天王洲アイル駅 1分

東京都港区高輪2丁目14-17

地上11階建て

31.7坪

都営浅草線 泉岳寺駅 4分

東京都品川区南品川2丁目2-13

地上10階 / 地下2階

35.32坪

京急本線 新馬場駅 3分

東京都品川区大崎1丁目20-8

地上8階建て

32.39坪

JR山手線 大崎駅 2分

東京都江東区青梅2丁目4-32

地上19階 / 地下1階

28.68坪 〜 28.97坪

ゆりかもめ テレコムセンター駅 2分

東京都品川区西五反田7丁目16-3

地上5階建て

27.61坪

JR山手線 五反田駅 7分

東京都品川区西五反田7丁目22-17

地上13階 / 地下3階

27.62坪

東急池上線 大崎広小路駅 5分

※表示金額はすべて「税抜き表示」となっています。 / ※間取図は現況を優先させていただきます。 / ※駐車場は建物設備としての有無のため、有の場合でも賃貸条件としての空きを保証するものではありません。 / ※掲載情報の誤りや変更、未掲載情報の掲載依頼がございましたら、お手数ですが お問い合わせフォーム よりご連絡ください。

掲載物件数:2,357件  4,253区画

お気に入りに追加