エルパティオみなとの空室一覧
↓ 募集区画クリックで詳細情報をご覧いただけます
| 募集区画 | 面積 | 用途 | 賃料+共益費 | 坪単価(共益費込) | 入居時期 | 平面図 | お気に入り |
|---|---|---|---|---|---|---|---|
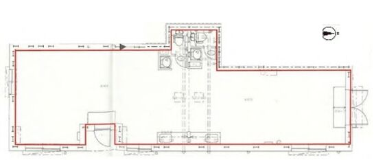
| NEW1階 | 24.16坪 | 事務所、店舗 | 相談 | - | 2026年2月上旬 |
※表⽰⾦額は、敷⾦・保証⾦などの預かり⾦を除き、別途消費税がかかります。 / ※間取図は現況を優先させていただきます。 / ※駐車場は建物設備としての有無のため、有の場合でも賃貸条件としての空きを保証するものではありません。 / ※掲載情報の誤りや変更、未掲載情報の掲載依頼がございましたら、お手数ですが お問い合わせフォームよりご連絡ください。
近隣の条件が近い物件
掲載物件数:2,275件
4,165区画
















建物詳細
エルパティオみなと(中央区湊3丁目)は、新富町駅から徒歩約4分の賃貸オフィスビルです。
建物は2012年8月竣工、規模は地上4階建てです。
最新の空室状況や賃料・賃貸条件など、お気軽にお問合せ下さい。