NEW

八丁堀共同ビル 4階402

最終情報更新日:2025/12/24
ビルコード:1310203326
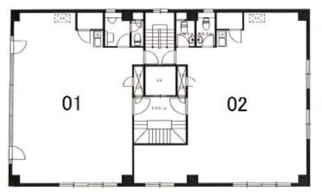
八丁堀共同ビル 4階402 平面図

賃貸条件

所在階4階
用途事務所
面積26.04坪 / 86.1m²
賃料312,480円
共益費賃料に含む
坪単価12,000円/坪(共益費込)
預託金3ヶ月
入居時期2026年5月上旬
その他費用償却: なし
礼金: なし

物件概要

所在地東京都中央区八丁堀2丁目8-2
交通
  • 東京メトロ日比谷線 八丁堀駅 3分
  • 都営浅草線 宝町駅 7分
  • 東京メトロ東西線 茅場町駅 8分
規模地上7階建て
竣工1982年4月
構造鉄骨鉄筋コンクリート(SRC造)
基準階坪数50.41坪

物件詳細・設備

エレベーター1基
情報通信設備光ファイバー
空調個別空調

八丁堀共同ビルの空室一覧

↓ 募集区画クリックで詳細情報をご覧いただけます

募集区画面積用途賃料+共益費坪単価(共益費込)入居時期平面図お気に入り
NEW5階50227.47坪事務所329,640円12,000円/坪2026年3月上旬
NEW4階40226.04坪事務所312,480円12,000円/坪2026年5月上旬

※表⽰⾦額は、敷⾦・保証⾦などの預かり⾦を除き、別途消費税がかかります。 / ※間取図は現況を優先させていただきます。 / ※駐車場は建物設備としての有無のため、有の場合でも賃貸条件としての空きを保証するものではありません。 / ※掲載情報の誤りや変更、未掲載情報の掲載依頼がございましたら、お手数ですが お問い合わせフォームよりご連絡ください。

近隣の条件が近い物件

東京都中央区八丁堀2丁目2-4

地上5階建て

24.9坪

JR京葉線 八丁堀駅 4分

東京都中央区八丁堀3丁目9-5

地上8階建て

25.05坪

都営浅草線 宝町駅 2分

東京都中央区八丁堀4丁目9-6

地上10階建て

24.06坪 〜 26.6坪

東京メトロ日比谷線 八丁堀駅 1分

東京都中央区日本橋茅場町2丁目6-8

地上6階 / 地下1階

27.0坪

東京メトロ東西線 茅場町駅 2分

東京都中央区京橋3丁目7-10

地上6階 / 地下1階

25.0坪

都営浅草線 宝町駅 2分

東京都中央区八丁堀3丁目9-8

地上10階建て

28.94坪

都営浅草線 宝町駅 3分

東京都中央区日本橋2丁目16-4

地上9階建て

23.84坪

東京メトロ銀座線 日本橋駅 3分

東京都中央区銀座1丁目14-5

地上9階建て

26.0坪

東京メトロ有楽町線 銀座一丁目駅 2分

東京都中央区八重洲1丁目9

地上10階 / 地下2階

25.73坪

JR山手線 東京駅 0分

東京都中央区日本橋3丁目5-12

地上10階 / 地下2階

23.0坪

東京メトロ銀座線 日本橋駅 2分

東京都千代田区丸の内1丁目9-2

地上42階 / 地下4階

25.52坪

JR山手線 東京駅 1分

東京都中央区京橋2丁目6-6

地上8階建て

29.03坪

東京メトロ銀座線 京橋駅 2分

東京都中央区日本橋兜町1-10

地上7階 / 地下1階

25.9坪

東京メトロ日比谷線 茅場町駅 5分

掲載物件数:2,425件  4,418区画

お気に入りに追加