NEW

フサカビル 3階

最終情報更新日:2026/03/11
ビルコード: 1311600248
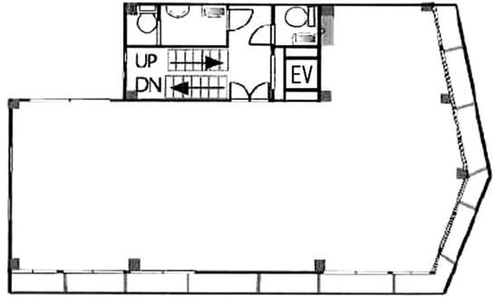
フサカビル 3階 平面図
建物詳細

フサカビル(豊島区南大塚)は、大塚駅徒歩2分の賃貸オフィスビルです。

建物は地上7階地下1階建て、竣工は1969年10月です。エレベーターは1基あります。

賃貸条件

所在階 3階
用途 事務所、店舗
面積 50.39坪 / 166.57m²
賃料 629,875円
共益費 50,000円
坪単価 12,500円/坪 (共益費込)
預託金 3ヶ月
入居時期 2026年4月上旬
その他費用 償却: 2ヶ月
礼金: 1ヶ月
更新料・再契約料: 1ヶ月
トイレ 男女別

物件概要

所在地 東京都豊島区南大塚3丁目44-11
交通
  • JR山手線 大塚駅 2分
  • 東京メトロ丸ノ内線 新大塚駅 5分
規模 地上7階 / 地下1階
竣工 1969年10月
構造 鉄筋コンクリート(RC造)
基準階坪数 50.47坪

物件詳細・設備

エレベーター 1基
駐車場 なし
情報通信設備 光ファイバー
空調 個別空調
セキュリティ 機械警備

フサカビルの空室一覧

↓ 募集区画クリックで詳細情報をご覧いただけます

募集区画 面積 用途 賃料+共益費 坪単価(共益費込) 入居時期 平面図 お気に入り
NEW 3階 50.39坪 事務所、店舗 679,875円 12,500円/坪 2026年4月上旬

近隣の条件が近い物件

東京都豊島区東池袋3丁目22-17

地上7階 / 地下1階

51.35坪

東京メトロ有楽町線 東池袋駅 8分

東京都豊島区南池袋2丁目17-7

地上13階建て

50.12坪

JR山手線 池袋駅 5分

東京都文京区小石川5丁目36-5

地上7階 / 地下1階

53.4坪

東京メトロ丸ノ内線 茗荷谷駅 6分

東京都豊島区南大塚3丁目11-9

地上7階建て

33.12坪 〜 37.65坪

東京メトロ丸ノ内線 新大塚駅 4分

東京都豊島区東池袋1丁目40-2

地上7階 / 地下2階

45.0坪

JR山手線 池袋駅 3分

東京都豊島区西池袋2丁目29-19

地上11階 / 地下1階

53.7坪

JR山手線 池袋駅 3分

東京都豊島区南池袋2丁目35-4

地上8階 / 地下1階

44.3坪

東京メトロ有楽町線 東池袋駅 4分

東京都豊島区西池袋1丁目18-6

地上7階建て

46.25坪

JR山手線 池袋駅 4分

東京都豊島区南池袋2丁目5-2

地上5階建て

43.48坪

東京メトロ有楽町線 東池袋駅 5分

東京都新宿区下落合3丁目21-1

地上10階 / 地下1階

52.64坪

JR山手線 目白駅 5分

東京都文京区白山5丁目36-9

地上10階建て

46.41坪

都営三田線 白山駅 1分

東京都豊島区池袋2丁目14-4

地上9階 / 地下1階

55.77坪

JR山手線 池袋駅 5分

東京都豊島区南池袋2丁目30-11

地上10階 / 地下1階

40.37坪

JR山手線 池袋駅 6分

東京都豊島区駒込3丁目3-17

地上7階 / 地下1階

57.15坪

JR山手線 駒込駅 2分

東京都新宿区新小川町6-36

地上14階 / 地下1階

53.05坪

JR中央・総武線 飯田橋駅 8分

※表示金額はすべて「税抜き表示」となっています。 / ※間取図は現況を優先させていただきます。 / ※駐車場は建物設備としての有無のため、有の場合でも賃貸条件としての空きを保証するものではありません。 / ※掲載情報の誤りや変更、未掲載情報の掲載依頼がございましたら、お手数ですが お問い合わせフォーム よりご連絡ください。

掲載物件数:2,399件  4,308区画

お気に入りに追加