賃貸条件
| 所在階 | 2階 |
|---|---|
| 用途 | 事務所 |
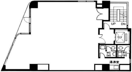
| 面積 | 34.65坪 / 114.545m² |
| 賃料 | 相談 |
| 共益費 | 121,275円 |
| 坪単価 | - |
| 預託金 | 10ヶ月 |
| 入居時期 | 2026年8月上旬 |
| その他費用 |
償却: 1ヶ月
更新料・再契約料: なし |
| 天井高 | 2,500mm |
| トイレ | 男女別 |
| 床仕様 | OAフロア |
物件概要
| 所在地 | 東京都千代田区内神田1丁目2-2 |
|---|---|
| 交通 |
|
| 規模 | 地上10階 / 地下1階 |
| 竣工 | 1987年4月 |
| 耐震基準 | 新耐震基準 |
| 構造 | 鉄骨鉄筋コンクリート(SRC造) |
| 基準階坪数 | 34.65坪 |
| 基準階天井高 | 2,500mm |
物件詳細・設備
| エレベーター | 1基 |
|---|---|
| 情報通信設備 | 光ファイバー |
| 空調 | 個別空調 |
| セキュリティ | 機械警備 |
小川ビル(内神田)の空室一覧
↓ 募集区画クリックで詳細情報をご覧いただけます
| 募集区画 | 面積 | 用途 | 賃料+共益費 | 坪単価(共益費込) | 入居時期 | 平面図 | お気に入り |
|---|---|---|---|---|---|---|---|
| NEW 2階 | 34.65坪 | 事務所 | 相談 | - | 2026年8月上旬 |
|
※表示金額はすべて「税抜き表示」となっています。 / ※間取図は現況を優先させていただきます。 / ※駐車場は建物設備としての有無のため、有の場合でも賃貸条件としての空きを保証するものではありません。 / ※掲載情報の誤りや変更、未掲載情報の掲載依頼がございましたら、お手数ですが お問い合わせフォーム よりご連絡ください。
掲載物件数:2,345件
4,195区画
建物詳細
小川ビル(千代田区内神田1丁目)は、大手町駅から徒歩約3分の賃貸オフィスビルです。
建物は1987年4月竣工、規模は地上10階・地下1階建てです。エレベーターは1基あります。
貸室基準階は、フロア面積34.65坪、天井高は2500mmです。
OAフロア・男女別トイレ・機械警備・個別空調などの設備が備わっています。
最新の空室状況や賃料・賃貸条件など、お気軽にお問合せ下さい。