03-6264-1890
受付時間 9:00 - 18:30 定休日 土日祝
受付時間 9:00 - 18:30 定休日 土日祝
小川ビル(内神田) 2階
物件情報
| 所在地 | 東京都千代田区内神田1丁目2-2 |
|---|---|
| 最寄駅 |
東京メトロ丸ノ内線 大手町駅 3分 東京メトロ丸ノ内線 淡路町駅 7分 都営新宿線 小川町駅 7分 JR山手線 神田駅 10分 |
| 竣工 | 1987年4月 |
| 階数 | 地上10階 / 地下1階 |
| エレベーター | 1基 |
賃貸条件
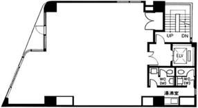
| 募集区画 | 2階 |
|---|---|
| 賃料 (共益費) | 相談(121,275円) |
| 敷金 /礼金 | 10ヶ月/- |
|
保証金
/敷引/償却 |
-/-/1ヶ月 |
| 面積 | 34.65坪 |
| 入居条件 | 2026年8月上旬 |