NEW

八重洲長岡ビル 6階

落ち着いた色合いのエントランスが好印象。レイアウト効率の高い室内。
最終情報更新日:2026/02/17
ビルコード: 1310200087
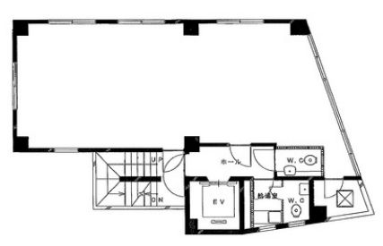
八重洲長岡ビル 6階 平面図
建物詳細

八重洲長岡ビル(中央区新川2丁目8-4)は、最寄り駅「八丁堀」駅徒歩3分の賃貸オフィスビルです。

規模は地上8階建て、竣工は1979年5月です。

オフィス貸室内には柱もなく、お手洗い等は執務室外のためレイアウト効率の高い空間です。機械警備・個別空調・光ファイバー等設備も充実しております。

最新の募集状況や賃料・賃貸条件など、お気軽にお問合せ下さい。

賃貸条件

所在階 6階
用途 事務所
面積 21.84坪 / 72.21m²
賃料 327,600円
共益費 賃料に含む
坪単価 15,000円/坪 (共益費込)
預託金 10ヶ月
入居時期 即入居
その他費用 償却: なし
更新料・再契約料: なし
トイレ 男女共用

物件概要

所在地 東京都中央区新川2丁目8-4
交通
  • 東京メトロ日比谷線 八丁堀駅 3分
  • 東京メトロ東西線 茅場町駅 7分
規模 地上8階建て
竣工 1979年5月
構造 鉄骨鉄筋コンクリート(SRC造)
基準階坪数 25.0坪

物件詳細・設備

エレベーター 1基
駐車場 なし
情報通信設備 光ファイバー
空調 個別空調
セキュリティ 機械警備

八重洲長岡ビルの空室一覧

↓ 募集区画クリックで詳細情報をご覧いただけます

募集区画 面積 用途 賃料+共益費 坪単価(共益費込) 入居時期 平面図 お気に入り
NEW 6階 21.84坪 事務所 327,600円 15,000円/坪 即入居
NEW 2階 21.84坪 事務所 349,440円 16,000円/坪 即入居

近隣の条件が近い物件

東京都中央区新川2丁目18-10

地上10階建て

20.82坪

JR京葉線 八丁堀駅 3分

東京都中央区日本橋茅場町2丁目4-8

地上7階建て

20.9坪

東京メトロ日比谷線 茅場町駅 4分

東京都中央区日本橋茅場町2丁目14-1

地上7階建て

22.0坪

東京メトロ東西線 茅場町駅 3分

東京都中央区八丁堀4丁目9-6

地上10階建て

24.06坪

東京メトロ日比谷線 八丁堀駅 1分

東京都中央区日本橋茅場町2丁目1-11

地上9階建て

22.87坪

東京メトロ日比谷線 茅場町駅 3分

東京都中央区新富1丁目16-12

地上6階 / 地下1階

22.88坪

東京メトロ有楽町線 新富町駅 3分

東京都中央区日本橋3丁目5-12

地上10階 / 地下2階

23.0坪

東京メトロ銀座線 日本橋駅 2分

東京都中央区京橋2丁目7-14

地上8階 / 地下1階

21.52坪

東京メトロ銀座線 京橋駅 2分

東京都中央区日本橋2丁目16-4

地上9階建て

23.84坪

東京メトロ銀座線 日本橋駅 3分

東京都中央区日本橋2丁目16-6

地上10階建て

19.91坪

東京メトロ銀座線 日本橋駅 2分

東京都中央区京橋3丁目9-2

地上10階 / 地下1階

21.5坪

都営浅草線 宝町駅 1分

東京都中央区日本橋兜町1-10

地上7階 / 地下1階

21.16坪

東京メトロ日比谷線 茅場町駅 5分

東京都中央区八丁堀2丁目2-4

地上5階建て

24.9坪

JR京葉線 八丁堀駅 4分

東京都中央区築地2丁目2-7

地上9階 / 地下1階

22.34坪

東京メトロ日比谷線 築地駅 2分

東京都中央区新富2丁目14-5

地上9階建て

23.64坪

東京メトロ有楽町線 新富町駅 1分

東京都中央区湊3丁目3-3

地上4階建て

24.16坪

東京メトロ有楽町線 新富町駅 4分

※表示金額はすべて「税抜き表示」となっています。 / ※間取図は現況を優先させていただきます。 / ※駐車場は建物設備としての有無のため、有の場合でも賃貸条件としての空きを保証するものではありません。 / ※掲載情報の誤りや変更、未掲載情報の掲載依頼がございましたら、お手数ですが お問い合わせフォーム よりご連絡ください。

掲載物件数:2,413件  4,390区画

お気に入りに追加