03-6264-1890
受付時間 9:00 - 18:30 定休日 土日祝
受付時間 9:00 - 18:30 定休日 土日祝
八重洲長岡ビル 6階
物件情報
| 所在地 | 東京都中央区新川2丁目8-4 |
|---|---|
| 最寄駅 |
東京メトロ日比谷線 八丁堀駅 3分 東京メトロ東西線 茅場町駅 7分 |
| 竣工 | 1979年5月 |
| 階数 | 地上8階建て |
| エレベーター | 1基 |
賃貸条件
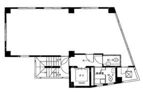
| 募集区画 | 6階 |
|---|---|
| 賃料 (共益費) | 327,600円(賃料に含む) |
| 敷金 /礼金 | -/- |
|
保証金
/敷引/償却 |
10ヶ月/-/なし |
| 面積 | 21.84坪 |
| 入居条件 | 2026年5月上旬 |