
賃貸条件
| 所在階 | 3階 |
|---|---|
| 用途 | 事務所 |
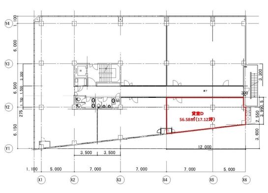
| 面積 | 17.12坪 / 56.59m² |
| 賃料 | 相談 |
| 共益費 | 賃料に含む |
| 坪単価 | - |
| 預託金 | 12ヶ月 |
| 入居時期 | 2026年4月上旬 |
| その他費用 | 償却: なし 礼金: なし 更新料・再契約料: 新賃料1ヶ月 |
| トイレ | 男女別 |
物件概要
| 所在地 | 東京都渋谷区渋谷1丁目20-1 |
|---|---|
| 交通 |
|
| 規模 | 地上6階 / 地下1階 |
| 竣工 | 1975年3月 |
| 構造 | 鉄筋コンクリート(RC造) |
| 基準階坪数 | 123.46坪 |
| 基準階天井高 | 2,350mm |
| 延床面積 | 3,343.38㎡ |
物件詳細・設備
| エレベーター | 1基 |
|---|---|
| 駐車場 | あり 平面式 |
| 情報通信設備 | 光ファイバー |
| 空調 | 個別空調 |
| セキュリティ | 機械警備・有人管理 |
| リニューアル履歴 | 2019年 照明LED化、空調設備更新済
2011年 耐震補強済、エントランス、外構、水廻りリニューアル済 |
※表⽰⾦額は、敷⾦・保証⾦などの預かり⾦を除き、別途消費税がかかります。 / ※間取図は現況を優先させていただきます。 / ※駐車場は建物設備としての有無のため、有の場合でも賃貸条件としての空きを保証するものではありません。 / ※掲載情報の誤りや変更、未掲載情報の掲載依頼がございましたら、お手数ですが お問い合わせフォームよりご連絡ください。
近隣の条件が近い物件
掲載物件数:2,447件
4,449区画


























