
賃貸条件
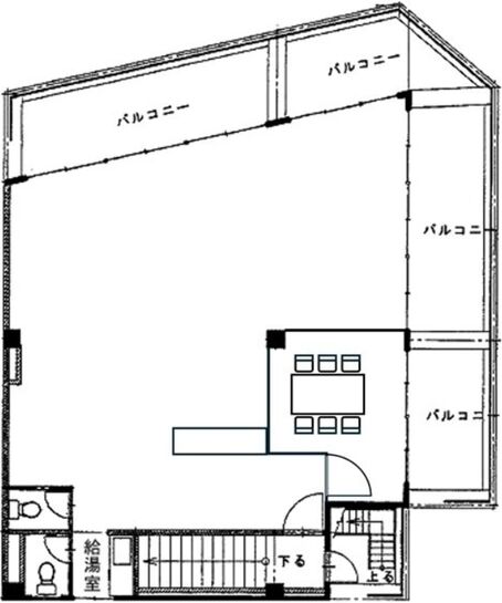
| 所在階 | 4階内装付 |
|---|---|
| 用途 | 事務所 |
| 面積 | 27.8坪 / 91.9m² |
| 賃料 | 444,800円 |
| 共益費 | 55,600円 |
| 坪単価 | 18,000円/坪(共益費込) |
| 預託金 | 6ヶ月 |
| 入居時期 | 即入居 |
| その他費用 | 償却: なし 礼金: なし 更新料・再契約料: なし |
| 天井高 | 2,350mm |
| トイレ | 男女別 |
| 床仕様 | タイルカーペット |
物件概要
| 所在地 | 東京都品川区西五反田7丁目15-4 |
|---|---|
| 交通 |
|
| 規模 | 地上4階建て |
| 竣工 | 1970年1月 |
| 構造 | 鉄筋コンクリート(RC造) |
| 基準階坪数 | 39.2坪 |
| 基準階天井高 | 2,350mm |
物件詳細・設備
| エレベーター | なし |
|---|---|
| 空調 | 個別空調 |
第三花田ビル(第3花田ビル)の空室一覧
↓ 募集区画クリックで詳細情報をご覧いただけます
| 募集区画 | 面積 | 用途 | 賃料+共益費 | 坪単価(共益費込) | 入居時期 | 平面図 | お気に入り |
|---|---|---|---|---|---|---|---|
| NEW4階内装付 | 27.8坪 | 事務所 | 500,400円 | 18,000円/坪 | 即入居 |
※表⽰⾦額は、敷⾦・保証⾦などの預かり⾦を除き、別途消費税がかかります。 / ※間取図は現況を優先させていただきます。 / ※駐車場は建物設備としての有無のため、有の場合でも賃貸条件としての空きを保証するものではありません。 / ※掲載情報の誤りや変更、未掲載情報の掲載依頼がございましたら、お手数ですが お問い合わせフォームよりご連絡ください。
近隣の条件が近い物件
掲載物件数:2,458件
4,459区画

















建物詳細
第3花田ビル(品川区西五反田7丁目)は、大崎広小路駅から徒歩約6分の賃貸オフィスビルです。
建物は1970年1月竣工、規模は地上4階建てです。貸室基準階は、フロア面積39.2坪、天井高は2350mmです。
男女別トイレ・機械警備・個別空調などの設備が備わっています。
最新の空室状況や賃料・賃貸条件など、お気軽にお問合せ下さい。