NEW

第三花田ビル(第3花田ビル) 3階

最終情報更新日:2026/03/13
ビルコード: 1310900165
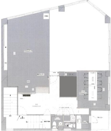
第三花田ビル(第3花田ビル) 3階 平面図
建物詳細

第3花田ビル(品川区西五反田7丁目)は、大崎広小路駅から徒歩約6分の賃貸オフィスビルです。

建物は1970年1月竣工、規模は地上4階建てです。貸室基準階は、フロア面積39.2坪、天井高は2350mmです。

男女別トイレ・機械警備・個別空調などの設備が備わっています。

最新の空室状況や賃料・賃貸条件など、お気軽にお問合せ下さい。

賃貸条件

所在階 3階
用途 事務所
面積 37.29坪 / 123.27m²
賃料 522,060円
共益費 74,580円
坪単価 16,000円/坪 (共益費込)
預託金 6ヶ月
入居時期 2026年4月上旬
その他費用 償却: なし
礼金: なし
更新料・再契約料: なし
天井高 2,350mm
トイレ 男女別
床仕様 OAフロア

物件概要

所在地 東京都品川区西五反田7丁目15-4
交通
  • 東急池上線 大崎広小路駅 6分
  • JR山手線 五反田駅 8分
  • 東急目黒線 不動前駅 10分
規模 地上4階建て
竣工 1970年1月
構造 鉄筋コンクリート(RC造)
基準階坪数 39.2坪
基準階天井高 2,350mm

物件詳細・設備

エレベーター なし
空調 個別空調

第三花田ビル(第3花田ビル)の空室一覧

↓ 募集区画クリックで詳細情報をご覧いただけます

募集区画 面積 用途 賃料+共益費 坪単価(共益費込) 入居時期 平面図 お気に入り
4階 内装付 27.8坪 事務所 389,200円 14,000円/坪 即入居
NEW 3階 37.29坪 事務所 596,640円 16,000円/坪 2026年4月上旬

近隣の条件が近い物件

東京都品川区西五反田7丁目22-17

地上13階 / 地下3階

27.62坪 〜 43.45坪

東急池上線 大崎広小路駅 5分

東京都品川区西五反田7丁目23-1

地上11階建て

37.42坪 〜 41.56坪

東急目黒線 不動前駅 5分

東京都品川区上大崎2丁目14-5

地上10階 / 地下1階

38.34坪

JR山手線 目黒駅 2分

東京都品川区西五反田7丁目16-3

地上5階建て

27.61坪

JR山手線 五反田駅 7分

※表示金額はすべて「税抜き表示」となっています。 / ※間取図は現況を優先させていただきます。 / ※駐車場は建物設備としての有無のため、有の場合でも賃貸条件としての空きを保証するものではありません。 / ※掲載情報の誤りや変更、未掲載情報の掲載依頼がございましたら、お手数ですが お問い合わせフォーム よりご連絡ください。

掲載物件数:2,360件  4,284区画

お気に入りに追加