NEW

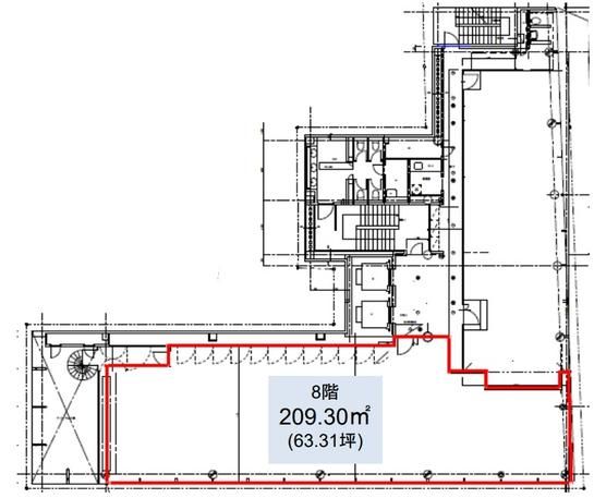
銀座YOMIKOビル 8階801

最終情報更新日:2026/03/25
ビルコード: 1310201091
銀座YOMIKOビル 8階801 平面図

賃貸条件

所在階 8階
用途 事務所
面積 63.31坪 / 209.28m²
賃料 相談
共益費 相談
坪単価 -
預託金 12ヶ月
入居時期 2026年11月上旬
その他費用 償却: なし
礼金: なし
更新料・再契約料: なし
トイレ 男女別
床仕様 OAフロア

物件概要

所在地 東京都中央区銀座1丁目8-14
交通
  • 東京メトロ有楽町線 銀座一丁目駅 1分
  • 東京メトロ銀座線 銀座駅 4分
  • 東京メトロ日比谷線 東銀座駅 6分
規模 地上9階 / 地下2階
竣工 2000年8月
耐震基準 新耐震基準
構造 鉄骨(S造)
基準階坪数 112.41坪
基準階天井高 2,600mm
延床面積 4,937.9㎡

物件詳細・設備

エレベーター 2基
駐車場 あり 14台
情報通信設備 光ファイバー
空調 個別空調
セキュリティ 機械警備

銀座YOMIKOビルの空室一覧

↓ 募集区画クリックで詳細情報をご覧いただけます

募集区画 面積 用途 賃料+共益費 坪単価(共益費込) 入居時期 平面図 お気に入り
NEW 8階801 63.31坪 事務所 相談 - 2026年11月上旬

近隣の条件が近い物件

東京都中央区銀座1丁目6-11

地上8階 / 地下1階

62.88坪

東京メトロ有楽町線 銀座一丁目駅 1分

東京都中央区銀座1丁目8-21

地上9階 / 地下1階

65.35坪

東京メトロ有楽町線 銀座一丁目駅 3分

東京都中央区銀座2丁目14-2

地上9階建て

65.38坪

東京メトロ有楽町線 銀座一丁目駅 3分

東京都中央区銀座1丁目3-13

地上9階 / 地下1階

66.02坪

東京メトロ有楽町線 銀座一丁目駅 1分

東京都中央区京橋3丁目12-7

地上9階建て

61.09坪

都営浅草線 宝町駅 1分

東京都中央区銀座6丁目7-4

地上10階 / 地下2階

63.79坪

東京メトロ銀座線 銀座駅 3分

東京都中央区築地2丁目4-2

地上9階建て

63.0坪 〜 66.1坪

東京メトロ有楽町線 新富町駅 1分

東京都中央区銀座2丁目11-8

地上13階 / 地下1階

67.32坪

東京メトロ有楽町線 銀座一丁目駅 2分

東京都中央区銀座7丁目4-4

地上11階 / 地下1階

64.34坪

東京メトロ丸ノ内線 銀座駅 2分

東京都中央区八丁堀4丁目11-5

地上6階 / 地下1階

63.02坪

東京メトロ日比谷線 八丁堀駅 1分

東京都中央区八丁堀4丁目11-10

地上10階建て

62.88坪

東京メトロ日比谷線 八丁堀駅 1分

東京都中央区八丁堀1丁目11-12

地上9階建て

64.64坪

東京メトロ日比谷線 八丁堀駅 3分

東京都中央区八丁堀4丁目3-4

地上11階建て

67.05坪

東京メトロ日比谷線 八丁堀駅 3分

東京都中央区八丁堀3丁目14-4

地上8階建て

65.9坪

東京メトロ日比谷線 八丁堀駅 2分

東京都中央区日本橋2丁目10-4

地上13階建て

64.72坪

東京メトロ銀座線 日本橋駅 2分

※表示金額はすべて「税抜き表示」となっています。 / ※間取図は現況を優先させていただきます。 / ※駐車場は建物設備としての有無のため、有の場合でも賃貸条件としての空きを保証するものではありません。 / ※掲載情報の誤りや変更、未掲載情報の掲載依頼がございましたら、お手数ですが お問い合わせフォーム よりご連絡ください。

掲載物件数:2,354件  4,249区画

お気に入りに追加