NEW

FAMビル(FAM Building) 3階

最終情報更新日:2026/02/24
ビルコード: 1310600157
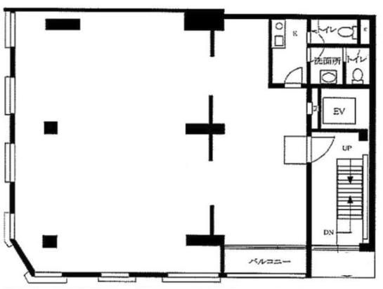
FAMビル(FAM Building) 3階 平面図

賃貸条件

所在階 3階
用途 事務所、店舗
面積 41.99坪 / 138.8m²
賃料 482,000円
共益費 125,970円
坪単価 14,478円/坪 (共益費込)
預託金 6ヶ月
入居時期 即入居
その他費用 礼金: なし
トイレ 男女別

物件概要

所在地 東京都台東区浅草橋1丁目25-12
交通
  • JR中央・総武線 浅草橋駅 2分
  • 都営浅草線 浅草橋駅 2分
規模 地上6階建て
竣工 1964年12月
構造 鉄筋コンクリート(RC造)
基準階坪数 36.57坪

物件詳細・設備

エレベーター 1基
駐車場 なし
情報通信設備 光ファイバー
セキュリティ 機械警備
リニューアル履歴 2018年10月 フルリニューアル

FAMビル(FAM Building)の空室一覧

↓ 募集区画クリックで詳細情報をご覧いただけます

募集区画 面積 用途 賃料+共益費 坪単価(共益費込) 入居時期 平面図 お気に入り
NEW 3階 41.99坪 事務所、店舗 607,970円 14,478円/坪 即入居

近隣の条件が近い物件

東京都台東区浅草橋1丁目10-6

地上7階建て

41.0坪

JR中央・総武線 浅草橋駅 2分

東京都中央区東日本橋2丁目16-4

地上9階建て

40.33坪

総武線(快速) 馬喰町駅 3分

東京都中央区日本橋小伝馬町16

地上9階建て

41.13坪

総武線(快速) 馬喰町駅 2分

東京都中央区日本橋馬喰町1丁目6-8

地上8階 / 地下1階

44.31坪

総武線(快速) 馬喰町駅 1分

東京都千代田区東神田1丁目15-2

地上5階 / 地下1階

38.59坪

総武線(快速) 馬喰町駅 1分

東京都台東区柳橋1丁目3-4

地上7階 / 地下1階

38.09坪

都営浅草線 浅草橋駅 2分

東京都中央区日本橋小伝馬107-2他(地番)

地上8階建て

40.59坪

東京メトロ日比谷線 小伝馬町駅 1分

東京都千代田区岩本町3丁目9-2

地上8階建て

45.0坪

都営新宿線 岩本町駅 2分

東京都千代田区神田西福田町4-2

地上8階建て

41.3坪

総武線(快速) 新日本橋駅 4分

東京都台東区元浅草1丁目6-29

地上6階建て

40.56坪

都営大江戸線 新御徒町駅 2分

東京都千代田区神田須田町1丁目24-6

地上11階建て

43.06坪

東京メトロ銀座線 神田駅 1分

東京都台東区上野3丁目7-5

地上8階建て

43.57坪

東京メトロ銀座線 末広町駅 3分

東京都千代田区神田須田町2丁目2-5

地上8階 / 地下2階

44.16坪

JR山手線 神田駅 4分

東京都千代田区神田佐久間町1-9(予定)

地上12階 / 地下1階

38.4坪

JR山手線 秋葉原駅 3分

東京都千代田区外神田5丁目2-11

地上7階建て

40.0坪

東京メトロ銀座線 末広町駅 2分

東京都中央区日本橋浜町3丁目23-1

地上8階 / 地下3階

40.44坪 〜 41.59坪

都営新宿線 浜町駅 2分

東京都中央区日本橋本町3丁目2-11

地上5階 / 地下1階

43.99坪

総武線(快速) 新日本橋駅 2分

東京都千代田区神田司町2丁目6-1

地上9階 / 地下1階

43.5坪

JR山手線 神田駅 6分

東京都中央区東日本橋2丁目22-1

地上8階建て

48.56坪

都営浅草線 東日本橋駅 3分

※表示金額はすべて「税抜き表示」となっています。 / ※間取図は現況を優先させていただきます。 / ※駐車場は建物設備としての有無のため、有の場合でも賃貸条件としての空きを保証するものではありません。 / ※掲載情報の誤りや変更、未掲載情報の掲載依頼がございましたら、お手数ですが お問い合わせフォーム よりご連絡ください。

掲載物件数:2,413件  4,390区画

お気に入りに追加